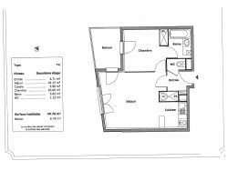
Forom Immobilier vous propose cet appartement T2 d'une surface d'environ 40.70 m² au 2 ème étage, avec vue sur la Seine, situé dans une résidence sécurisée sur la commune de MELUN.
Le logement dispose d'un séjour, une cuisine, une chambre, une salle de bains, un WC indépendant, un balcon et une place de parking extérieur.
 Charges : 117.37 / mois  Taxe foncière : 1 267 / an  DPE : D  Nombre de lots : 84  Honoraires charge vendeur
La résidence La résidence se situe dans un quartier calme, résidentiel et bien desservi, à deux pas des transports (RER D), commerces et espaces verts, offrant un cadre de vie agréable et pratique.
Honoraires à la charge du vendeur. Dans une copropriété de 84 lots. Aucune procédure n'est en cours. Classe énergie D, Classe climat B Montant estimé des dépenses annuelles d'énergie pour un usage standard : entre 700.00  et 980.00  sur les années 2021, 2022 et 2023 (abonnements compris). Les informations sur les risques auxquels ce bien est exposé sont disponibles sur le site Géorisques : georisques.gouv.fr.
40.7 m²
3 440 €
7 m²
2
1
1
1 (séparé)
2
117.37 € / mois
Ouest
1 (7 m²)
Oui
1
Oui (84 lots)
Consommations énergétiques
Logement économe
205
Logement énergivore (kWhEP/m2/an)
Émissions de gaz à effet de serre
Faible émission de GES
6
Forte émission de GES(kgeqCO2/m2/an)
Contact Forom® Immobilier
Contacter gratuitement à l'aide du formulaire ci-dessous.