Appartement T3 neuf avec terrasse Résidence « Le Clos du Parc »
PTZ possible Frais de notaire réduits
À Moidieu-Détourbe, au sein de la résidence neuve « Le Clos du Parc », venez découvrir ce T3 de 71,85 m² avec une agréable terrasse de 8m², idéal pour profiter des beaux jours. Programme neuf livraison prévisionnelle fin 2026 / début 2027.Idéal pour une résidence principale ou un premier achat, avec frais de notaire réduits et PTZ possible.
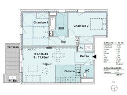
Appartement situé au 1er étage : - Cuisine : 6,30m² - Séjour lumineux : 21,58 m² avec accès terrasse - Chambre 1 : 12,84m² - Chambre 2 : 14,49m² - Salle de bain : 5,89m² - Terrasse : 8m²
Confort & équipements - Chauffage par pompe à chaleur air/eau (radiateurs) - Production d'eau chaude performante - Sèche-serviettes électrique - VMC hygroréglable type B - Détecteur de fumée - Prise étanche côté terrasse
Prestations intérieures - Carrelage dans les pièces de vie - Chape lisse dans les chambres (revêtement au choix de l'acquéreur) - Faïence toute hauteur dans la salle de bain - Peintures : plafonds finis blanc mat, murs prêts à décorer - Menuiseries PVC coloris RAL 7016 - Baie coulissante donnant accès à la terrasse - Terrasse en dalles béton 50×50 cm sur plots
Cuisine : A prévoir par les acquéreurs, liberté totale de personnalisation selon vos envies et votre budget.
Stationnement : Possibilité d'acquérir un garage en supplément (non vendu indépendamment).
Un appartement neuf, confortable et personnalisable, idéal pour démarrer un projet de vie serein. Contactez RCH Immo pour plus d'informations ou pour réserver votre logement.
Honoraires à la charge du vendeur.
RCH Immo : SIRET940 981 129 00015 Carte professionnelle CPI38022025000000002 délivrée par la CCI de Vienne Nord Isère RC Pro GALIAN : N° RCP_01_511042F
Informations sur les risques : georisques.gouv.fr
Honoraires à la charge du vendeur. Dans une copropriété de 12 lots. Aucune procédure n'est en cours. DPE vierge. Les informations sur les risques auxquels ce bien est exposé sont disponibles sur le site Géorisques : georisques.gouv.fr.
Votre conseiller RCH Immo : Gérant - Loïc Roche
71.85 m²
3 243 €
3
2
1
1 (séparé)
1
2025
Nord
Oui
1
Oui (12 lots)
Contact RCH Immo
Contacter gratuitement à l'aide du formulaire ci-dessous.