Honoraires à la charge de l'acquéreur (Prix hors honoraires : 409000 euros).
A VENDRE. LIMITE VINCENNES, 3 PIECES. RUE KLÉBER À MONTREUIL . Le bien se situe dans un secteur très bien desservi par les transports en commun (métro, bus, RER), avec une très bonne accessibilité vers Paris et l'est parisien. Le quartier est vivant et équipé, avec commerces, écoles et services de proximité. La présence de la ligne 11 toute fraîchement ouverte améliore encore la connectivité du secteur, notamment vers le Hoche et Vincennes.
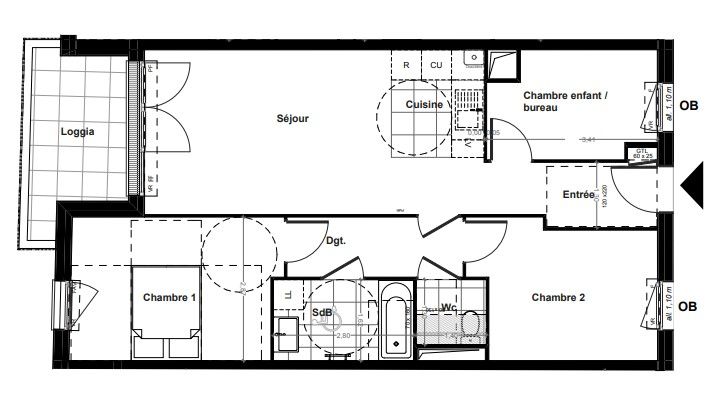
Situé au rez-de-chaussée d'un immeuble bien entretenu, ce 3 pièces de 58 m² offre un cadre de vie fonctionnel et bien agencé, à seulement quelques pas du métro Croix de Chavaux (ligne 9) et des commerces du centre-ville de Montreuil. L'appartement se compose de : Une entrée, Un dégagement distribuant les différentes pièces, Une cuisine indépendante à aménager selon vos envies, Un double séjour lumineux (possibilité de créer une seconde chambre), Une chambre calme côté cour, Une salle de bain avec baignoire et douche, Toilettes séparées. Une cave en sous-sol vient compléter ce bien.
Les plus du bien : Emplacement recherché à 5 min à pied du métro ligne 9 Double séjour modulable Proximité immédiate des commerces, écoles et transports Quartier vivant, bien desservi et en pleine évolution Bonne distribution des pièces, idéal pour un couple ou primo-accédants Transports à proximité : Métro ligne 9 Croix de Chavaux à 5 min à pied Accès rapide au centre de Paris Nombreuses lignes de bus (102, 115, 127, etc.) Nouvelle station ligne 11 à proximité (Montreuil Hôpital)
Honoraires inclus de 2.44% TTC à la charge de l'acquéreur. Prix hors honoraires 409 000 . Dans une copropriété de 30 lots. Quote-part moyenne du budget prévisionnel 1 900 /an. Aucune procédure n'est en cours. Classe énergie F, Classe climat F Logement à consommation énergétique excessive. Montant moyen estimé des dépenses annuelles d'énergie pour un usage standard, établi à partir des prix de l'énergie de l'année 2023 : entre 1780.00 et 2470.00 . Les informations sur les risques auxquels ce bien est exposé sont disponibles sur le site Géorisques : georisques.gouv.fr.
Votre conseiller INSTANTiMMO : Carole Sidhoum Agent commercial (Entrepreneur individuel à responsabilité limitée) RSAC 838835007 RCP AACI/16626/20601. INSTANTiMMO - Réseau d'agences immobilières et de conseillers immobiliers. Rejoignez-nous sur www.instantimmo.fr.
58 m²
7 224 €
3
2
1
1
1 (séparé)
2.44 %
158.00 € / mois
1930
Est
Ouest
Oui
Oui (30 lots)
Consommations énergétiques
Logement économe
343
Logement énergivore (kWhEP/m2/an)
Émissions de gaz à effet de serre
Faible émission de GES
75
Forte émission de GES(kgeqCO2/m2/an)
Contact I@D France - Carole SIDHOUM
Contacter gratuitement à l'aide du formulaire ci-dessous.