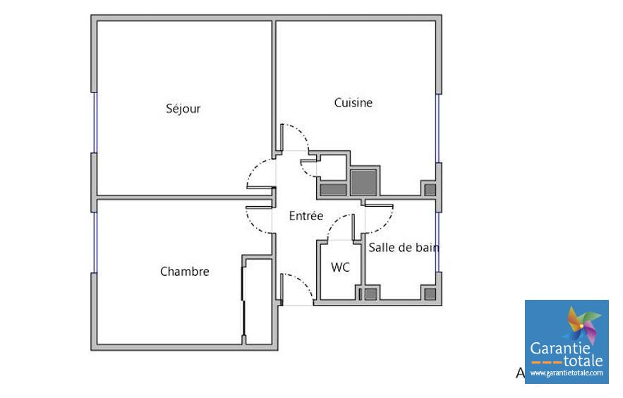
Situé à Montreuil, au pied du métro Hôpital (ligne 11), cet appartement de 3/4 pièces se trouve au neuvième et dernier étage d'une résidence fermée et sécurisée. Il se compose d'un séjour lumineux avec cuisine ouverte, donnant accès à un balcon, de deux chambres, d'une salle d'eau, de WC séparés, ainsi que de nombreux espaces de rangement. Une cave vient compléter ce bien. Entièrement rénové en 2019, l'appartement est en bon état général. Vous bénéficierez d'un environnement agréable, à proximité immédiate du métro et des commerces, au sein d'une résidence arborée disposant d'aires de jeux pour enfants. Sans vis-à-vis, baigné de lumière, il offre une vue panoramique. Stationnement libre au sein de la résidence. Charges annuelles de 4021,48 euros, provision fond travaux inclus de 540 euros / an.
Honoraires à la charge du vendeur. Dans une copropriété de 720 lots. Aucune procédure n'est en cours. Logement à consommation énergétique excessive : Classe énergie F, Classe climat E Montant moyen estimé des dépenses annuelles d'énergie pour un usage standard, établi à partir des prix de l'énergie de l'année 16777215 : entre 1810.00 et 2490.00 . Les informations sur les risques auxquels ce bien est exposé sont disponibles sur le site Géorisques : georisques.gouv.fr.
60.56 m²
3 550 €
3 m²
4
2
1
1
9 sur 9
335.14 € / mois
1957
1 (3 m²)
Oui
Oui
Oui (720 lots)
Consommations énergétiques
Logement économe
349
Logement énergivore (kWhEP/m2/an)
Émissions de gaz à effet de serre
Faible émission de GES
67
Forte émission de GES(kgeqCO2/m2/an)
Contact Sophie VILARINHO FERNANDES
Contacter gratuitement à l'aide du formulaire ci-dessous.