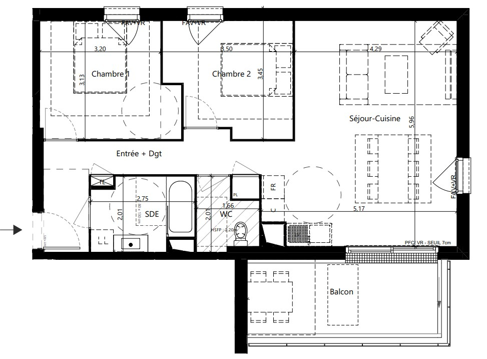
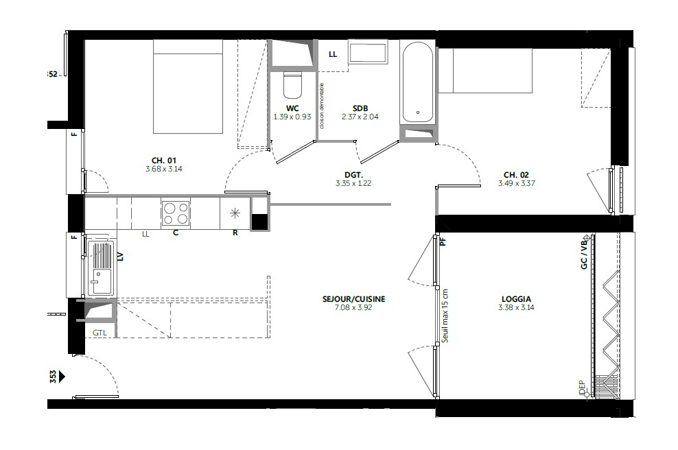
? EXCLUSIVITÉ Un nid spacieux au coeur de Mornant ! Laissez-vous charmer par cet appartement de 4 pièces, idéalement situé à deux pas du centre de Mornant et à seulement quelques kilomètres de Lyon. Avec ses 85 m² parfaitement agencés, il offre un cadre de vie confortable et prêt à accueillir vos plus beaux projets. Dès l'entrée, la grande pièce de vie vous enveloppe dans une atmosphère conviviale, sublimée par une cuisine entièrement équipée où mijoter vos plats préférés deviendra un plaisir quotidien. Côté nuit, trois chambres accueillantes vous offrent calme et intimité, sans oublier une salle d'eau pensée pour votre confort. Le chauffage au gaz garantit une chaleur douce et agréable en hiver, tandis que la cave et le balcon viennent parfaire l'ensemble . Situé au premier étage d'un charmant immeuble de seulement deux niveaux, l'appartement est en bon état, prêt à vous offrir un quotidien serein dès le premier jour. La copropriété, intimiste avec seulement 3 lots, propose des charges annuelles imbattables de 335 pour ce logement.
Côté localisation, c'est le combo gagnant : Tous les établissements scolaires, de la maternelle au lycée, accessibles en moins de 10 minutes à pied. Et pour agrémenter votre vie quotidienne : cinéma, bibliothèque, piscine, restaurants, commerces, boulangeries, épiceries, bureau de poste tout est là, à portée de pas.
? Un bien rare, parfaitement placé et prêt à vivre. Il ne reste plus qu'à le découvrir Prenez rendez-vous avec Thomas et laissez-vous séduire ! ?
Honoraires à la charge du vendeur. Dans une copropriété de 6 lots. Quote-part moyenne du budget prévisionnel 335 /an. Aucune procédure n'est en cours. Classe énergie D, Classe climat D Montant moyen estimé des dépenses annuelles d'énergie pour un usage standard, établi à partir des prix de l'énergie de l'année 2021 : entre 1070.00 et 1490.00 . Les informations sur les risques auxquels ce bien est exposé sont disponibles sur le site Géorisques : georisques.gouv.fr.