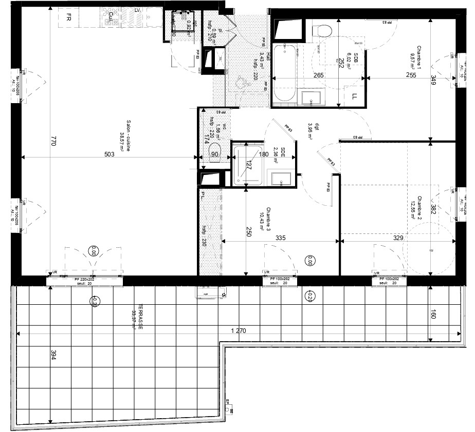
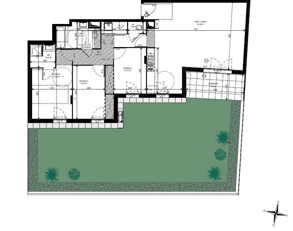
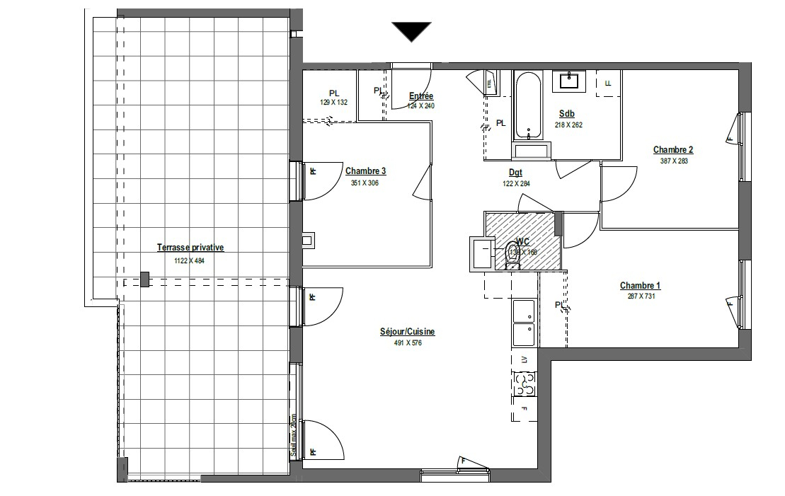
Découvrez un duplex au Coeur de Mornant (69440) Laissez-vous séduire par ce bien d'exception, niché dans une copropriété en pierre au charme intemporel. Ce duplex de 144,84 m², entièrement rénové en 2014, incarne l'alliance parfaite entre authenticité et modernité. Un intérieur élégant et fonctionnel Volumes généreux : 6 pièces lumineuses, dont 5 chambres, offrant un espace de vie idéal pour les familles, avec une suite parentale qui saura vous émerveiller. Séjour spacieux : Profitez d'un salon de 45 m² baigné de lumière, un véritable havre de convivialité. Cuisine haut de gamme : La cuisine signée Perrene, aménagée et équipée avec soin, ravira les amateurs de gastronomie et de design. Confort moderne : Ouvertures en bois avec double vitrage, son poêle à bois et 2 salles d'eau modernes. Imaginez-vous sur une terrasse de 40 m², parfaite pour des moments de détente, de convivialité ou pour savourer un café matinal. Ce bien rare vous promet une qualité de vie raffinée. Agrémentée d'une cave de 16 m² et de deux places de stationnement .
Situé à deux pas des commodités : écoles, commerces, restaurants, parcs, et services médicaux, ce bien offre un cadre de vie pratique et agréable. Votre Nouveau Havre de Paix Vous Attend : Ce duplex est une opportunité unique de vivre dans un cadre exceptionnel, mêlant charme et confort contemporain. Ne laissez pas passer cette pépite rare sur Mornant. Contactez-nous dès aujourd'hui pour organiser une visite et laissez-vous charmer par ce bien.
Honoraires à la charge du vendeur. Dans une copropriété de 15 lots. Quote-part moyenne du budget prévisionnel 924 /an. Aucune procédure n'est en cours. Classe énergie C, Classe climat A Montant moyen estimé des dépenses annuelles d'énergie pour un usage standard, établi à partir des prix de l'énergie de l'année 2021 : entre 1220.00 et 1720.00 . Les informations sur les risques auxquels ce bien est exposé sont disponibles sur le site Géorisques : georisques.gouv.fr.