Honoraires à la charge de l'acquéreur (Prix hors honoraires : 435000 euros).
Le Domaine de l'Ardoise est une opportunité passionnante d'acheter un nouveau chalet non loin du centre de Morzine. Situé à seulement 2km et à quelques minutes à pied de la navette, cet ensemble de chalets et d'appartements se trouve dans un quartier calme avec vue sur la montagne et orienté plein sud.
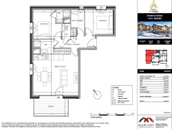
L'appartement T3 de 61,96 m² situé au 1er étage, comprenant un séjour/cuisine lumineux de 24,92 m², deux chambres confortables, un coin montagne, une salle de bain, une salle d'eau, un WC indépendant ainsi qu'une entrée avec placard. Il dispose également d'un balcon de 8,30 m² offrant un bel espace extérieur.
Avec la nouvelle construction viennent les garanties de 10 ans et les frais de notaire réduits d'environ 2,5% au lieu de 7,5%
DPE en cours. Les informations sur les risques auxquels ce bien est exposé sont disponibles sur le site Géorisques : georisques.gouv.fr.
61.96 m²
7 021 €
8 m²
25 m²
3
2
1
1
1 (séparé)
1
2024
1 (8 m²)
1
1
Oui
Contact MY HOME IN THE ALPS
Contacter gratuitement à l'aide du formulaire ci-dessous.