Honoraires à la charge de l'acquéreur (Prix hors honoraires : 155000 euros).
T3 avec BALCON - Expo Sud-Ouest - PLACE de parking en sous-sol
Je vous propose de venir découvrir ce T3 lumineux au 3ème étage d'une copropriété récente avec ascenseur :
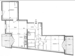
L'appartement se compose d'une entrée avec placard, d'un séjour de 21m2 avec cuisine ouverte donnant accès au balcon exposé Sud-Ouest, de deux chambres avec placard dont une chambre avec son balcon privatif, une salle de bains et un wc indépendant.
Les ATOUTS : - Copropriété récente - 2 balcons - expo Sud-Ouest - Parking en sous-sol - Local vélos - DPE C - Chauffage individuel
Je suis à votre disposition pour toutes informations complémentaires et demandes de visites, contactez-moi!!
Honoraires inclus de 6% TTC à la charge de l'acquéreur. Prix hors honoraires 155 000 . Dans une copropriété de 128 lots. Aucune procédure n'est en cours. Classe énergie C, Classe climat C Montant moyen estimé des dépenses annuelles d'énergie pour un usage standard, établi à partir des prix de l'énergie de l'année 2021 : entre 580.00 et 830.00 . Les informations sur les risques auxquels ce bien est exposé sont disponibles sur le site Géorisques : georisques.gouv.fr.