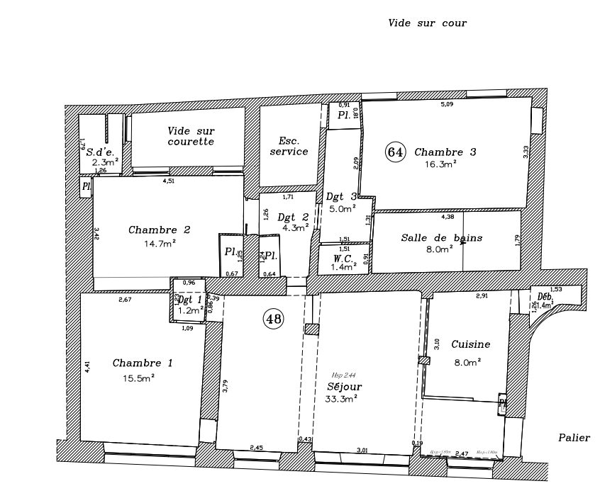
Au sein d'un immeuble ancien de très grand standing avec gardien, découvrez cet appartement familial de plus de 115 m², situé au 1er étage avec ascenseur. Dès l'entrée, une élégante galerie dessert harmonieusement l'ensemble des espaces. Le double séjour, absolument remarquable, séduit par ses balconnets, son parquet en point de Hongrie, ses moulures, ses deux cheminées et sa très belle hauteur sous plafond, offrant tout le charme de l'ancien. L'espace nuit se compose de trois chambres spacieuses et indépendantes, chacune disposant de sa propre salle d'eau. La cuisine indépendante, à rénover, bénéficie d'un accès par escalier de service, d'une seconde porte d'entrée et d'un espace cellier, offrant de multiples possibilités d'aménagement. Une grande cave de 9 m² en sous-sol complète ce bien. Adresse de prestige, fort potentiel de rénovation, volumes élégants et cachet préservé : un appartement coup de coeur, rare sur le secteur, réunissant toutes les qualités du charme de l'ancien.
Honoraires à la charge du vendeur. Dans une copropriété de 12 lots. Aucune procédure n'est en cours. Classe énergie E, Classe climat C Montant estimé des dépenses annuelles d'énergie pour un usage standard : entre 1.00 et 2.00 sur les années 2021, 2022 et 2023 (abonnements compris). Les informations sur les risques auxquels ce bien est exposé sont disponibles sur le site Géorisques : georisques.gouv.fr.
Votre conseiller INSTANTiMMO : Emilie MEUNIER Agent commercial (Entreprise individuelle) RSAC 887 991 289 RCP en cours. INSTANTiMMO - Réseau d'agences immobilières et de conseillers immobiliers. Rejoignez-nous sur www.instantimmo.fr.
115.22 m²
11 804 €
33 m²
5
3
3
3
1 sur 6
200.00 € / mois
1905
Est
Oui
Oui
Oui
Oui
Oui
Oui
Oui (12 lots)
Consommations énergétiques
Logement économe
260
Logement énergivore (kWhEP/m2/an)
Émissions de gaz à effet de serre
Faible émission de GES
26
Forte émission de GES(kgeqCO2/m2/an)
Contact Emilie MEUNIER
Contacter gratuitement à l'aide du formulaire ci-dessous.