Honoraires à la charge de l'acquéreur (Prix hors honoraires : 1133269 euros).
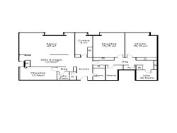
BEAUGRENELLE. Vue panoramique sur Tour Eiffel, Seine et monuments Parisiens, étage élevé, beau 6 pièces lumineux de 130m2 loi carrez, proche Monoprix, centre commercial, écoles (bilingue). Entrée, séjour, salle à manger, cuisine séparée (US possible), buanderie, 3 chambres (4 possibles), dressing, salle de bains, salle d'eau, 2 wc séparés, nombreux rangements, cave, parking possible. Transports : RER C, Métro ligne 6 et 10, Bus 30-42-70-88. Les informations sur les risques auxquels ce bien est exposé sont disponibles sur le site georisques.gouv.fr.
Honoraires inclus de 5.09% TTC à la charge de l'acquéreur. Prix hors honoraires 1 133 269 . Dans une copropriété de 300 lots. Quote-part moyenne du budget prévisionnel 817 /an. Aucune procédure n'est en cours. Classe énergie D, Classe climat D Montant moyen estimé des dépenses annuelles d'énergie pour un usage standard, établi à partir des prix de l'énergie de l'année 2021 : entre 1920.00 et 2630.00 . Les informations sur les risques auxquels ce bien est exposé sont disponibles sur le site Géorisques : georisques.gouv.fr.