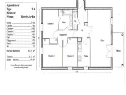
Forom Immobilier vous propose cet appartement T4 d'une surface d'environ 83 m² en rez-de-jardin situé dans une résidence sécurisée sur la commune de Perpignan Sud.
Le logement dispose d'un séjour, une cuisine fermée (possibilité de l'ouvrir sur le séjour, trois chambres avec placard, une salle de bains, un WC une terrasse, un grand jardin de près de 200 m² et deux places de parking.
Charges de copropriété : 171 / mois Eau chaude et chauffage individuels électrique Taxe foncière : 1 498 / an DPE : D Nombre de lots : 174 Honoraires charge vendeur
Résidence bien implantée au sud de Perpignan, dans un quartier résidentiel calme et verdoyant, à proximité des commodités (transports, commerces, services) et avec accès facile au centre-ville.
Résidence fermée et sécurisée (portail automatique, digicode, interphone), piscine extérieure, deux terrains de tennis.
Honoraires à la charge du vendeur. Dans une copropriété de 174 lots. Aucune procédure n'est en cours. Classe énergie D, Classe climat B Montant moyen estimé des dépenses annuelles d'énergie pour un usage standard, établi à partir des prix de l'énergie de l'année 2023 : entre 1.00 et 1.00 . Les informations sur les risques auxquels ce bien est exposé sont disponibles sur le site Géorisques : georisques.gouv.fr.
83.57 m²
2 692 €
4
3
1
1 (séparé)
171.39 € / mois
2003
2
1
Oui (174 lots)
Consommations énergétiques
Logement économe
210
Logement énergivore (kWhEP/m2/an)
Émissions de gaz à effet de serre
Faible émission de GES
10
Forte émission de GES(kgeqCO2/m2/an)
Contact Forom® Immobilier
Contacter gratuitement à l'aide du formulaire ci-dessous.