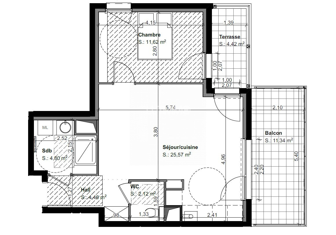
Programme neuf résidence le Nouvel'R Appartement 3 pièces de standing 62 m² Terrasse ou jardin
Découvrez ce programme neuf de qualité, proposant des appartements 3 pièces d'environ 62 m², alliant confort moderne, prestations de standing et cadre de vie privilégié. Norme environnementale RT2012, garantissant performance énergétique et économies au quotidien.Situation idéale, à proximité des axes autoroutiers et des commodités. Résidence sécurisée : Accès sécurisé avec porte anti-effraction Vidéophone / parlophone Ascenseur Prestations intérieures : Belle pièce de vie lumineuse avec baies vitrées Accès à une terrasse ou un jardin privatif Volets électriques Plancher chauffant avec chaudière individuelle gaz Salle de bains avec douche à l'italienne Large choix de finitions : carrelage, faïence et parquet Prestations soignées et matériaux de qualité Stationnement : Garage et/ou place de parking Une résidence pensée pour offrir confort, intimité et modernité, idéale pour une résidence principale ou un investissement.
À partir de 208 900 N'hésitez pas à nous contacter par téléphone ou à prendre rendez-vous directement en agence chez Créa Immobilier pour plus d'informations ou pour réserver votre futur logement.
Honoraires à la charge du vendeur. Dans une copropriété de 85 lots. Aucune procédure n'est en cours. DPE en cours. Les informations sur les risques auxquels ce bien est exposé sont disponibles sur le site Géorisques : georisques.gouv.fr.