Honoraires à la charge de l'acquéreur (Prix hors honoraires : 110000 euros).
En exclusivité chez PierreVal ! PLESTIN LES GREVES ??? Laissez-vous séduire par ce charmant appartement T2 de 43 m², situé au rez-de-chaussée d'une résidence bien entretenue datant de 2006. Niché dans un environnement verdoyant, il bénéficie d'une exposition plein sud qui inonde les pièces de lumière naturelle, offrant un cadre de vie chaleureux et agréable.
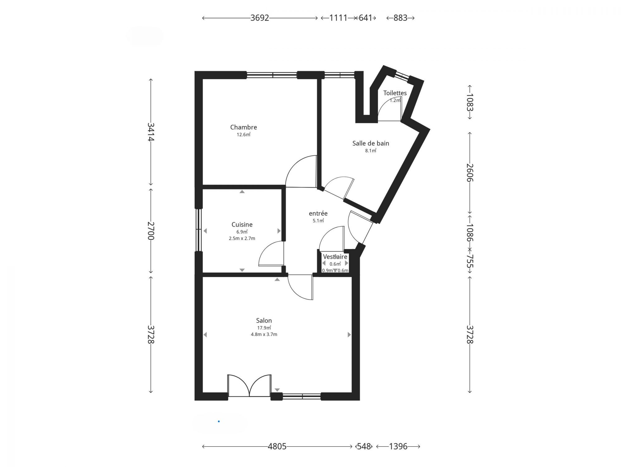
En franchissant le seuil, vous découvrirez une entrée fonctionnelle avec placard, un WC indépendant, ainsi qu'une pièce à usage de buanderie, idéale pour optimiser le rangement. Le séjour, spacieux et baigné de lumière, constitue un véritable espace de vie convivial, avec un coin cuisine à aménager selon vos goûts et besoins. La chambre, confortable et équipée de rangements intégrés, dispose de sa propre salle d'eau privative, pour un maximum de praticité au quotidien. À l'extérieur, une belle terrasse vous attend, parfaite pour vos repas en plein air, vos moments de détente ou vos soirées d'été entre amis. Pour compléter ce bien, une place de stationnement extérieur est mise à votre disposition.
Ce bien rare sur le marché allie luminosité, calme et fonctionnalité, dans un secteur recherché. Que vous soyez primo-accédant, investisseur ou à la recherche d'un pied-à-terre confortable, cet appartement est une belle opportunité à ne pas manquer. ? Contactez-nous dès maintenant pour organiser une visite !
Honoraires inclus de 8% TTC à la charge de l'acquéreur. Prix hors honoraires 110 000 . Dans une copropriété de 35 lots. Quote-part moyenne du budget prévisionnel 800 /an. Aucune procédure n'est en cours. Classe énergie D, Classe climat B Montant estimé des dépenses annuelles d'énergie pour un usage standard : entre 850.00 et 1190.00 sur les années 2021, 2022 et 2023 (abonnements compris). Les informations sur les risques auxquels ce bien est exposé sont disponibles sur le site Géorisques : georisques.gouv.fr.