EXCLUSIVITÉ - Appartement T4 à vendre au Carré Liberté, Pont-de-Chéruy
L'agence EVE IMMOBILIER PONT-DE-CHERUY est ravie de vous proposer ce superbe appartement de type T4, situé au premier étage de la résidence Carré Liberté, dans un cadre paisible et verdoyant.
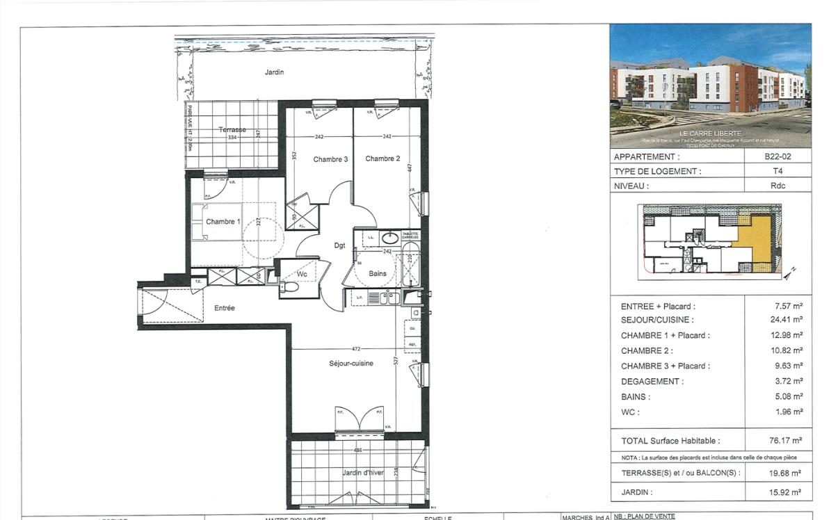
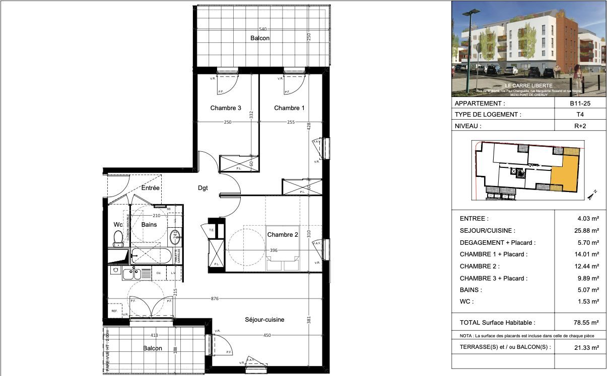
D'une surface habitable de 79,60 m², ce bien est conçu pour offrir confort et modernité, avec une disposition optimisée et des prestations de qualité.
Dès l'entrée, vous serez accueilli par un premier dégagement, qui dessert les espaces fonctionnels de l'appartement, à savoir une salle de bain moderne et un WC indépendant. Ce dégagement mène ensuite à un séjour lumineux, idéal pour recevoir, et une cuisine ouverte, offrant un espace convivial. Le séjour donne accès à un premier balcon, parfait pour profiter de l'extérieur en toute tranquillité.
L'appartement propose également une suite parentale spacieuse, comprenant une salle d'eau privative pour plus d'intimité et un accès direct à un second balcon, apportant une touche d'élégance supplémentaire.
Un second dégagement vous conduit à la partie nuit, composée de deux chambres supplémentaires. L'une de ces chambres offre un accès à un troisième balcon, ajoutant un atout supplémentaire à cet appartement déjà bien équipé.
Ce bien est doté de fenêtres en PVC double vitrage, assurant une isolation thermique et acoustique optimale. Les volets roulants manuels et le chauffage individuel au gaz par radiateurs vous garantissent un confort thermique tout au long de l'année.
La résidence Carré Liberté respecte les normes RT 2012, assurant une excellente performance énergétique et des économies d'énergie. La copropriété est sécurisée, avec un accès via visiophone et digicode, et bénéficie d'une connexion internet ultra-rapide grâce à la fibre. Un ascenseur dessert tous les étages, facilitant ainsi l'accès. En supplément vous avez la possibilité d'acquérir : Un garage ou une place de parking.
Une offre rare à ne pas manquer !
Honoraires à la charge du vendeur. Dans une copropriété de 336 lots. Aucune procédure n'est en cours. Classe énergie C, Classe climat C Montant moyen estimé des dépenses annuelles d'énergie pour un usage standard, établi à partir des prix de l'énergie de l'année 2024 : entre 460.00 et 670.00 . Les informations sur les risques auxquels ce bien est exposé sont disponibles sur le site Géorisques : georisques.gouv.fr.