EXCLUSIVITÉ - Appartement T4 à vendre au Carré Liberté, Pont-de-Chéruy
L'agence EVE IMMOBILIER PONT-DE-CHERUY est ravie de vous présenter cet appartement de type T4, idéalement situé au deuxième étage de la résidence Carré Liberté, dans un cadre calme et verdoyant.
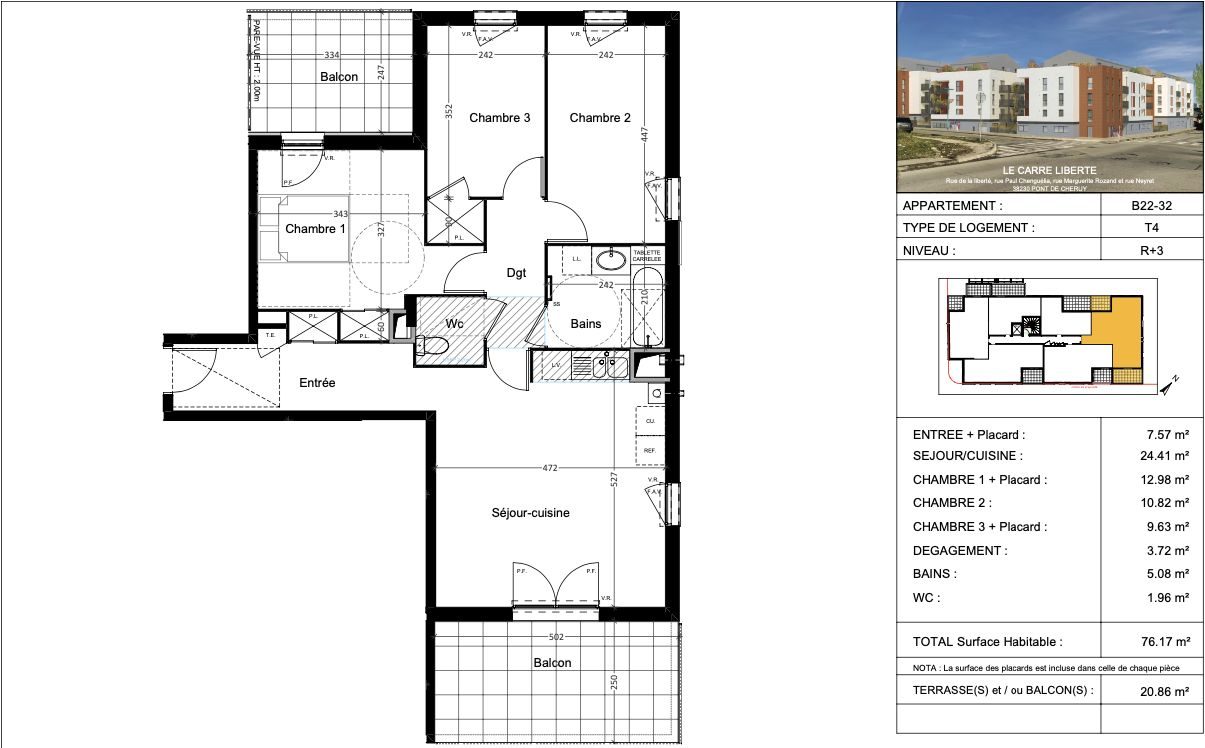
Avec une surface habitable de 79,6 m², cet appartement offre une disposition optimisée et des prestations modernes pour un cadre de vie confortable et chaleureux.
En entrant, vous découvrirez un hall d'entrée fonctionnel avec placard intégré. Ce premier dégagement dessert une salle de bain moderne, un WC indépendant, ainsi qu'une première chambre spacieuse, idéale pour un espace invité ou un bureau. Cette chambre, en tant que suite parentale, dispose d'une salle d'eau privative avec douche et donne accès à un balcon partagé avec l'une des chambres du second dégagement.
Le séjour, lumineux et spacieux, est ouvert sur une cuisine moderne et équipée, formant un espace de vie convivial. Cet espace s'ouvre également sur un balcon privatif, parfait pour profiter des extérieurs et des parties communes verdoyantes de la résidence.
Un second dégagement mène à deux autres chambres confortables, dont l'une dispose d'un accès a un balcon privatif offrant un cadre idéal pour une famille. Vous retrouverez au total 3 balcons
Les prestations de cet appartement incluent des fenêtres en PVC double vitrage, assurant une isolation thermique et phonique de qualité. Le chauffage individuel au gaz par radiateurs et les volets roulants manuels garantissent un confort en toutes saisons.
La résidence Carré Liberté est conforme aux normes RT 2012, ce qui permet de réaliser des économies d'énergie. L'accès sécurisé se fait par visiophone et digicode, et la copropriété est entièrement équipée de la fibre optique pour une connexion internet rapide et performante. Un ascenseur est également disponible pour un accès facile à tous les étages.
Ne manquez pas cette opportunité exceptionnelle !
Honoraires à la charge du vendeur. Dans une copropriété de 336 lots. Aucune procédure n'est en cours. Classe énergie B, Classe climat B Montant moyen estimé des dépenses annuelles d'énergie pour un usage standard, établi à partir des prix de l'énergie de l'année 2024 : entre 390.00 et 580.00 . Les informations sur les risques auxquels ce bien est exposé sont disponibles sur le site Géorisques : georisques.gouv.fr.