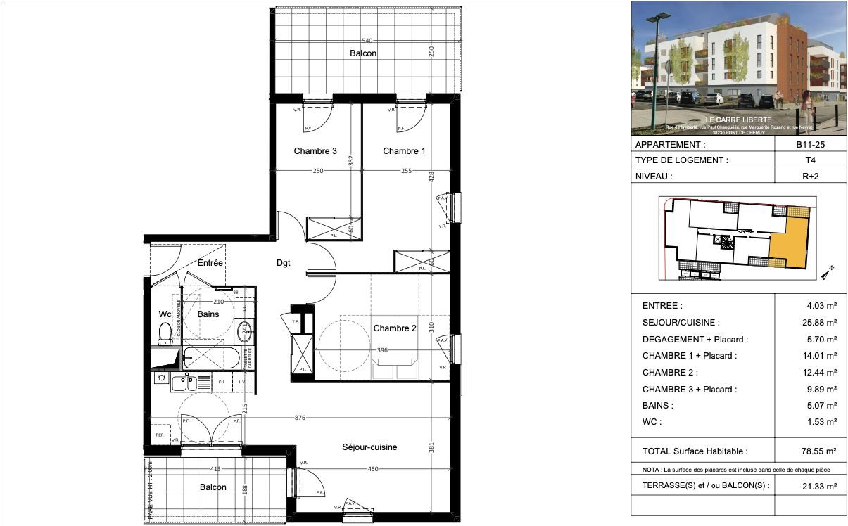
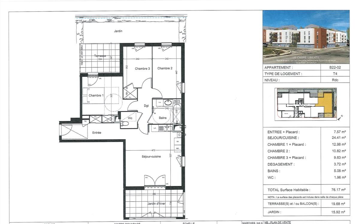
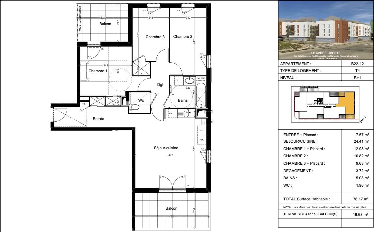
EXCLUSIVITÉ - Appartement T3 à vendre au Carré Liberté, Pont-de-Chéruy
L'agence EVE IMMOBILIER PONT-DE-CHERUY a le plaisir de vous proposer ce magnifique appartement de type T3, situé au deuxième étage de la résidence Carré Liberté, dans un environnement calme et verdoyant.
D'une surface habitable de 61,6 m², ce bien bénéficie d'une disposition optimisée et de prestations de qualité pour un cadre de vie confortable et moderne.
En entrant, vous serez accueilli par un premier dégagement qui dessert un séjour spacieux avec une cuisine ouverte. Cet espace de vie, baigné de lumière naturelle, donne accès à un balcon privatif, parfait pour profiter de moments de détente avec vue sur les parties communes verdoyantes de la copropriété.
Le dégagement principal mène également à une salle de bain moderne et un WC indépendant, offrant un confort supplémentaire.
Un second dégagement dessert la partie nuit, composée de deux chambres confortables, idéales pour une famille, un bureau ou un espace invité.
L'appartement est équipé de fenêtres en PVC double vitrage, offrant une excellente isolation thermique et phonique. Les volets roulants manuels et le chauffage individuel au gaz par radiateurs garantissent un confort optimal en toutes saisons.
La résidence Carré Liberté respecte les normes RT 2012, vous permettant de bénéficier d'importantes économies d'énergie. De plus, la copropriété est sécurisée avec un accès par visiophone et digicode, et est entièrement fibrée pour une connexion internet rapide et performante. Un ascenseur est également présent pour un accès facile à tous les étages.
De plus, vous avez la possibilité d'acquérir en supplément : Un garage simple, une place de parking, un double garage, ou encore un garage adapté aux normes PMR pour plus de flexibilité.
Une opportunité à ne pas manquer !
Honoraires à la charge du vendeur. Dans une copropriété de 336 lots. Aucune procédure n'est en cours. Classe énergie C, Classe climat C Montant moyen estimé des dépenses annuelles d'énergie pour un usage standard, établi à partir des prix de l'énergie de l'année 2024 : entre 370.00 et 560.00 . Les informations sur les risques auxquels ce bien est exposé sont disponibles sur le site Géorisques : georisques.gouv.fr.