EXCLUSIVITÉ - Appartement T2 à vendre au Carré Liberté, Pont-de-Chéruy
L'agence EVE IMMOBILIER PONT-DE-CHERUY est ravie de vous proposer ce superbe appartement de type T2, situé au rez-de-chaussée de la résidence Carré Liberté, dans un cadre paisible et verdoyant.
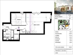
D'une surface habitable de 55,89 m², ce bien est conçu pour offrir confort et modernité, avec une disposition optimisée.
Dès l'entrée, vous serez accueilli par un dégagement, qui dessert les espaces fonctionnels de l'appartement, à savoir une salle de bain moderne avec un WC. Ce dégagement mène ensuite à un séjour lumineux, idéal pour recevoir, une cuisine ouverte, offrant un espace convivial et une chambre.
Ce bien est doté de fenêtres en PVC double vitrage, assurant une isolation thermique et acoustique optimale. Les volets roulants manuels et le chauffage individuel électrique vous garantissent un confort thermique tout au long de l'année.
La résidence Carré Liberté respecte les normes RT 2012, assurant une excellente performance énergétique et des économies d'énergie. La copropriété est sécurisée, avec un accès via visiophone et digicode, et bénéficie d'une connexion internet ultra-rapide grâce à la fibre.
En supplément, vous avez la possibilité d'acquérir : Un garage simple, une place de parking, un double garage, ou encore un garage aux normes PMR pour plus de flexibilité.
Le prix de vente inclut les frais de notaire et les frais d'agence, vous évitant ainsi des coûts supplémentaires.
Ne manquez pas cette opportunité unique de devenir propriétaire de cet appartement exceptionnel, alliant confort moderne, espace et sérénité. Contactez dès aujourd'hui l'agence EVE IMMOBILIER pour plus d'informations ou pour organiser une visite.
Une offre rare à ne pas manquer !
Honoraires à la charge du vendeur. Dans une copropriété de 336 lots. Aucune procédure n'est en cours. Classe énergie C, Classe climat C Montant estimé des dépenses annuelles d'énergie pour un usage standard : entre 460.00 et 660.00 sur les années 2021, 2022 et 2023 (abonnements compris). Les informations sur les risques auxquels ce bien est exposé sont disponibles sur le site Géorisques : georisques.gouv.fr.