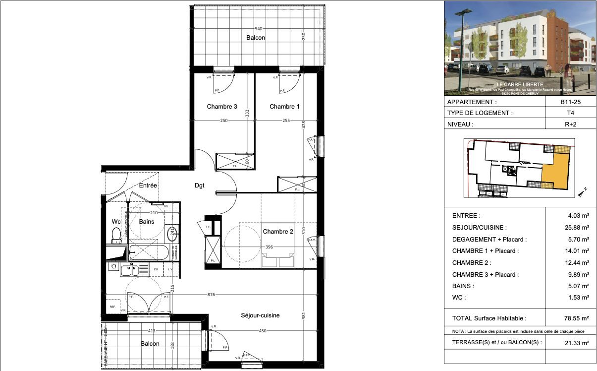
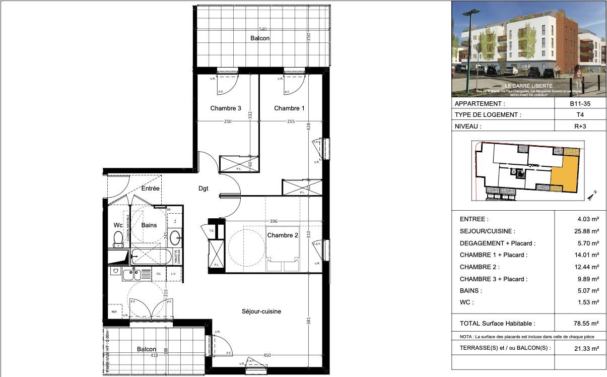
EXCLUSIVITÉ - Appartement T4 à vendre au Carré Liberté, Pont-de-Chéruy
L'agence EVE IMMOBILIER PONT-DE-CHERUY est heureuse de vous présenter cet appartement de type T4, situé au premier étage de la résidence Carré Liberté, dans un cadre verdoyant et paisible.
Avec une surface habitable de 76,17 m², cet appartement offre un agencement optimisé et des prestations modernes pour un confort de vie optimal.
En entrant, vous serez accueilli par une grande entrée qui s'ouvre sur un vaste séjour lumineux avec cuisine ouverte. Cet espace de vie, idéal pour partager des moments en famille ou entre amis, donne accès à un grand balcon, parfait pour profiter de l'extérieur et des vues sur les espaces verts de la résidence.
Le dégagement principal mène à la partie nuit, composée de trois chambres confortables. Une des chambres bénéficie de son propre balcon privatif, vous offrant un espace extérieur supplémentaire et intime. L'appartement comprend également une salle de bain moderne et un WC indépendant, garantissant le confort et la fonctionnalité.
Les prestations de l'appartement incluent des fenêtres en PVC double vitrage pour une excellente isolation thermique et phonique, des volets roulants manuels, ainsi qu'un chauffage individuel au gaz par radiateurs, garantissant un confort optimal en toutes saisons.
La résidence Carré Liberté respecte les normes RT 2012, vous permettant de réaliser des économies d'énergie importantes. De plus, la copropriété est entièrement sécurisée avec un accès par visiophone et digicode, et elle est équipée de la fibre optique pour une connexion internet rapide et performante. Un ascenseur est également présent pour un accès facile à tous les étages.
En supplément, plusieurs options sont disponibles pour l'acquisition : un garage simple, une place de parking, un double garage, un garage adapté aux normes PMR pour plus de flexibilité.
Une opportunité à saisir rapidement !
Honoraires à la charge du vendeur. Dans une copropriété de 336 lots. Aucune procédure n'est en cours. Classe énergie C, Classe climat C Montant moyen estimé des dépenses annuelles d'énergie pour un usage standard, établi à partir des prix de l'énergie de l'année 2024 : entre 460.00 et 660.00 . Les informations sur les risques auxquels ce bien est exposé sont disponibles sur le site Géorisques : georisques.gouv.fr.