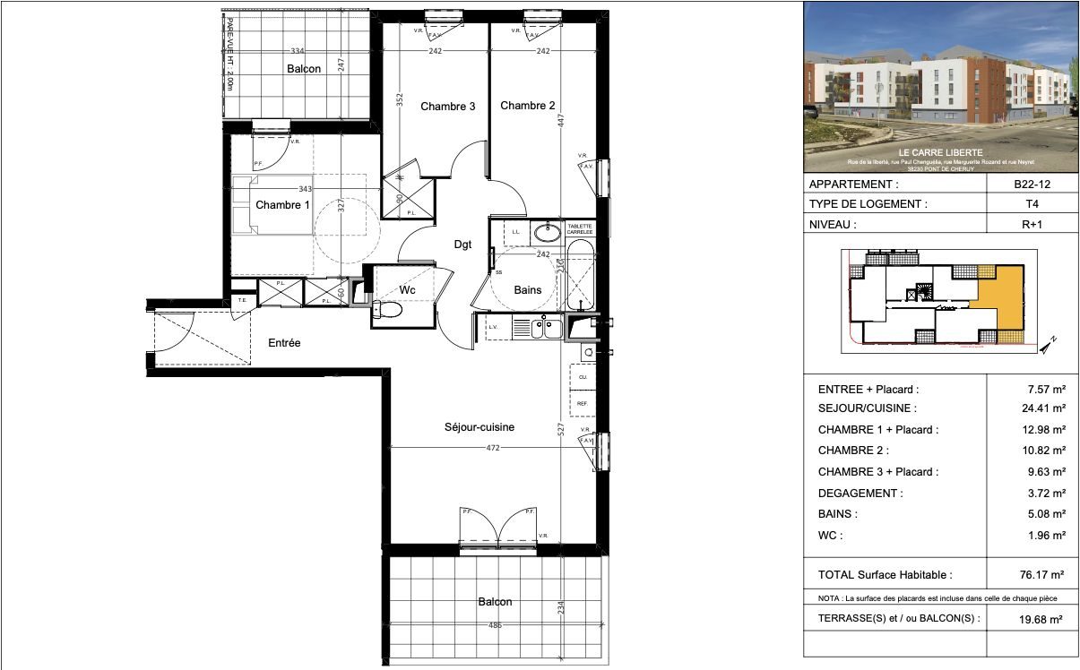
EXCLUSIVITÉ - Appartement T4 neuf à vendre au Carré Liberté, Pont-de-Chéruy
L'agence EVE IMMOBILIER PONT-DE-CHERUY est ravie de vous présenter ce superbe appartement neuf de type T4, idéalement situé en rez-de-chaussée de la résidence Carré Liberté, dans un environnement calme et verdoyant.
Avec une surface habitable de 76,17 m², cet appartement offre une disposition parfaitement optimisée et des prestations modernes, pour un cadre de vie confortable et lumineux.
En entrant, vous serez accueilli par une grande entrée qui dessert un spacieux séjour avec cuisine ouverte. Cet espace de vie convivial s'ouvre sur un charmant jardin d'hiver, un véritable havre de paix pour profiter de moments de détente en toute saison.
Le dégagement principal mène à la partie nuit, composée de trois chambres confortables. L'une des chambres bénéficie d'une terrasse privative donnant accès à un grand jardin, idéal pour profiter d'un espace extérieur personnel. Les deux autres chambres ont également un accès direct à ce grand jardin, offrant ainsi un cadre de vie verdoyant et intime.
L'appartement dispose également d'une salle de bain moderne et d'un WC indépendant, assurant un confort optimal au quotidien.
Les prestations incluent des fenêtres en PVC double vitrage pour une isolation thermique et phonique de qualité, ainsi que des volets roulants manuels. Le chauffage individuel au gaz par radiateurs garantit une chaleur agréable en toutes saisons.
La résidence Carré Liberté est conforme aux normes RT 2012, vous permettant de réaliser d'importantes économies d'énergie. De plus, la copropriété est sécurisée avec un accès par visiophone et digicode, et est entièrement équipée en fibre optique pour une connexion internet rapide et performante. Un ascenseur est également présent pour l'accès aux autres étages de la résidence.
Des options supplémentaires sont disponibles, telles que: un garage simple ou une place de parking,
Honoraires à la charge du vendeur. Dans une copropriété de 336 lots. Aucune procédure n'est en cours. Classe énergie C, Classe climat C Montant moyen estimé des dépenses annuelles d'énergie pour un usage standard, établi à partir des prix de l'énergie de l'année 2024 : entre 480.00 et 700.00 . Les informations sur les risques auxquels ce bien est exposé sont disponibles sur le site Géorisques : georisques.gouv.fr.