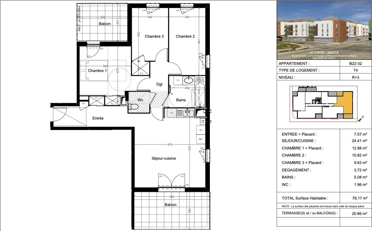
Sous compromis : En exclusivité, découvrez ce superbe appartement T4 de 91 m², idéalement situé au 2? et dernier étage d'une résidence récente et sécurisée construite en 2021, à Pont-Évêque.
Ce bien moderne se compose d'un spacieux séjour lumineux ouvrant sur une magnifique terrasse de 30 m², parfaite pour profiter des beaux jours. La partie nuit offre trois chambres confortables, une salle de bain, et un WC séparé.
Les prestations sont de qualité : chauffage au gaz, menuiseries PVC double vitrage, ascenseur, accès PMR, ainsi qu'une cave et deux garages en sous-sol complètent ce bien.
Dans une copropriété de 23 lots. Quote-part moyenne du budget prévisionnel 2 300 /an. Aucune procédure n'est en cours. Classe énergie B, Classe climat B Montant moyen estimé des dépenses annuelles d'énergie pour un usage standard, établi à partir des prix de l'énergie de l'année 2021 : entre 770.00 et 1120.00 . Les informations sur les risques auxquels ce bien est exposé sont disponibles sur le site Géorisques : georisques.gouv.fr.