Honoraires à la charge de l'acquéreur (Prix hors honoraires : 440000 euros).
RENNES CENTRE - Quartier Place des Lices.
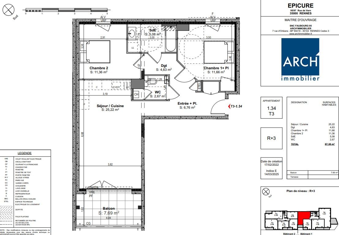
NOUVEAU - Appartement duplex 5 pièces de 97m²habitable et 113m² utile au 4ème et dernier étage d'une belle résidence.
Il se composé d'un séjour-salon donnant sur un balcon exposé Ouest, d'une grande cuisine aménagée, de quatre belles chambres dont une suite parentale avec salle d'eau privative au 1er niveau, d'une salle d'eau et deux WC.
Un garage vient compléter ce bien rare.
54 lots principaux de copropriété
DPE : C (170) GES : B (6)
1754/an de charges de copropriété dont l'eau froide.
Bénéficiez de la proximité du métro, des écoles et des commerces tout en étant au calme.
Prix : 462.000 honoraires d'agence de 5%TTC inclus soit 440.000 net vendeur (délégation de mandat).
Honoraires inclus de 5% TTC à la charge de l'acquéreur. Prix hors honoraires 440 000 . Dans une copropriété de 54 lots. Quote-part moyenne du budget prévisionnel 1 754 /an. Aucune procédure n'est en cours. Classe énergie C, Classe climat B Montant estimé des dépenses annuelles d'énergie pour un usage standard : entre 1640.00 et 2250.00 sur les années 2021, 2022 et 2023 (abonnements compris). Les informations sur les risques auxquels ce bien est exposé sont disponibles sur le site Géorisques : georisques.gouv.fr.