CERES IMMOBILIER vous propose cet appartement 2 pièces de 26 m², offrant un beau potentiel d'aménagement.
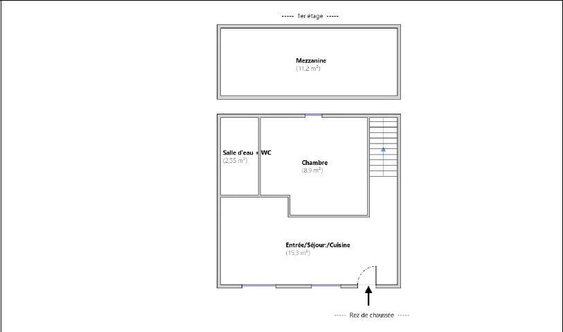
Situé au 1er étage d'une petite copropriété entièrement rénovée avec ravalement effectué il y a quatre ans, cet appartement se compose d'une pièce de vie avec cuisine ouverte, d'une chambre ainsi que d'une salle d'eau. L'agencement peut être optimisé afin de valoriser pleinement les volumes et créer un intérieur fonctionnel et agréable.
Des travaux de rafraîchissement sont à prévoir, laissant la possibilité de repenser les espaces selon vos envies et de créer un bien à votre image. Son potentiel et sa configuration en font une excellente opportunité, aussi bien pour un premier achat que pour un investissement. Le bien bénéficie par ailleurs d'un bon diagnostic de performance énergétique (DPE classé C), un véritable atout pour le confort et la maîtrise des consommations.
Situé rue de Saint-Gervais à Romainville, dans un secteur recherché, l'appartement bénéficie d'un environnement agréable à proximité immédiate des commerces et des transports. Vous rejoindrez notamment le métro Place Carnot en quelques minutes, facilitant vos déplacements au quotidien.
La qualité de la copropriété, récemment ravalée et bien entretenue, ainsi que les faibles charges constituent de véritables atouts pour ce bien.
Une belle opportunité à ne pas manquer. Contactez nous sans tarder pour organiser une visite !
Honoraires à la charge du vendeur. Dans une copropriété de 25 lots. Aucune procédure n'est en cours. Classe énergie C, Classe climat B Montant moyen estimé des dépenses annuelles d'énergie pour un usage standard, établi à partir des prix de l'énergie de l'année 2022 : entre 430.00 et 630.00 . Les informations sur les risques auxquels ce bien est exposé sont disponibles sur le site Géorisques : georisques.gouv.fr.