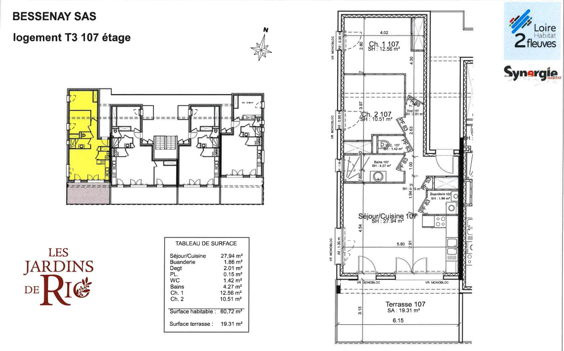
Appartement T3 Neuf avec Balcon et Stationnement - Une Résidence Idéale
Découvrez ce magnifique appartement T3 neuf, situé au 3ème étage d'une résidence, offrant une surface habitable de 61 m² et un balcon de 10 m². Construit en 2023, cet appartement est prêt à vous accueillir dans un environnement lumineux et moderne.
Le bien est composé d'un séjour spacieux et d'une cuisine américaine aménagée et équipée de 25 m², baigné de lumière grâce à ses grandes ouvertures en PVC à double vitrage. Les deux chambres, la salle d'eau, le WC indépendant et le cellier complètent ce logement fonctionnel et confortable.
Profitez d'une vue dégagée et agréable sur la ville et d'une exposition nord-ouest. L'ascenseur et le stationnement intérieur vous offrent un confort quotidien inégalé. L'isolation en laine de verre garantit une température agréable toute l'année.
À seulement quelques minutes à pied, commerces, écoles et transports vous attendent pour un quotidien simple et confortable.
Ne manquez pas cette opportunité de vivre dans un appartement neuf, alliant modernité et confort. Contactez-nous dès maintenant pour une visite !
Honoraires à la charge du vendeur. Dans une copropriété de 55 lots. Aucune procédure n'est en cours. Classe énergie B, Classe climat B Montant moyen estimé des dépenses annuelles d'énergie pour un usage standard, établi à partir des prix de l'énergie de l'année 2021 : entre 301.00 et 407.00 . Les informations sur les risques auxquels ce bien est exposé sont disponibles sur le site Géorisques : georisques.gouv.fr.