Honoraires à la charge de l'acquéreur (Prix hors honoraires : 500000 euros).
AG IMMOBILIER COMMISSIONS REDUITES (ACHAT/VENTE) SAINT GREGOIRE CENTRE
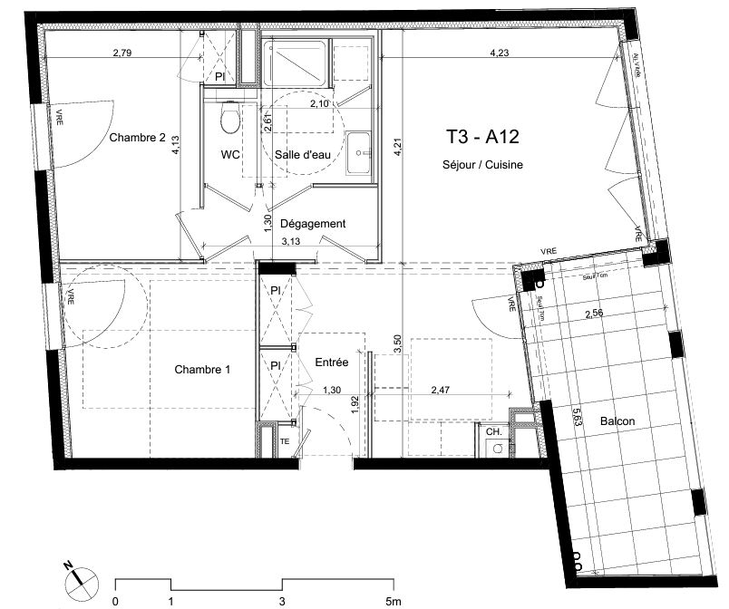
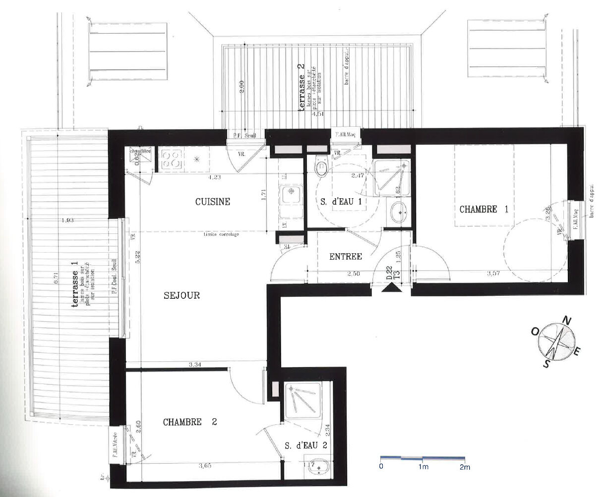
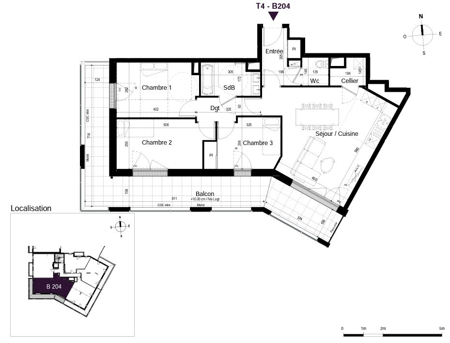
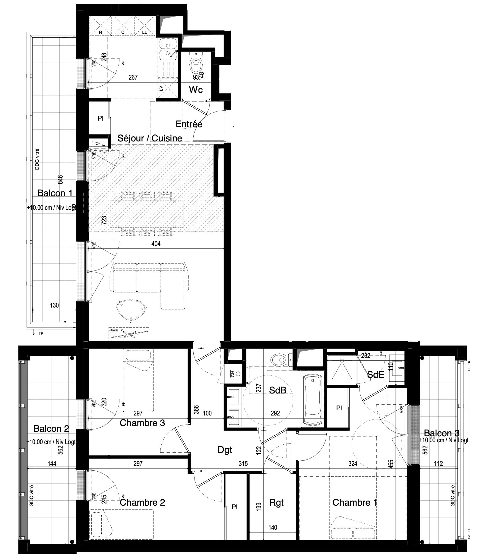
Appartement T4 de 84m² Spacieux et Lumineux au sein d'une résidence de Standing en coeur de bourg ! Découvrez ce magnifique appartement T4 de 83,88 m², situé dans un immeuble de standing (Immeuble le BELLAGIO) construit en 2021. Ce bien d'exception, en parfait état, vous offre un cadre de vie idéal pour toute personne souhaitant vivre dans le bourg de Saint-Grégoire. Au 1er étage d'un immeuble de 4 étages avec ascenseur, cet appartement baigné de lumière grâce à ses grandes ouvertures en aluminium, vous séduira par son ambiance chaleureuse et son agencement intelligent. L'appartement comprend : Une entrée indépendante avec placard, une pièce de vie de 37m²qui est un véritable espace de vie convivial, 2 chambres spacieuses (11m² et 13m²) dont 1 avec placard, une grande salle de bains de 6m² et la salle d'eau privative à la seconde chambre, un WC suspendu indépendants avec lave-mains, et un jardin d'hiver qui complète cet agencement vous permettant de profiter d'une pièce supplémentaire de 10m². Profitez d'une terrasse de 20m² exposée ouest au calme pour vos moments de détente et de deux stationnements en sous-sol sécurisés. Conforme aux normes PMR, cet appartement est également raccordé à la fibre. Situé dans un quartier animé, vous trouverez à proximité plusieurs commodités : des crèches, des écoles maternelles et élémentaires, des collèges, des restaurants, des commerces d'alimentation générale, des médecins généralistes, et un parc et jardin à 5 min en voiture. Un hôpital est également accessible en 10 min en voiture. Ne manquez pas cette opportunité de vivre dans un cadre exceptionnel, alliant confort, modernité et proximité des commodités. Honoraires d'agence réduits Prix HNI 519 000 (soit 500 000e net vendeur + 3.8% d'honoraires à la charge de l'acquéreur).
AG IMMOBILIER COMMISSIONS REDUITES Pacé 02.99.85.61.30 2 agences à votre service sur Rennes et Pacé Tous nos biens et + de photos sur www.agimmobilier.fr Les informations sur les risques auxquels ce bien est exposé sont disponibles sur le site Géorisques : www. georisques. gouv.fr
Nous recherchons en permanence pour notre large clientèle des biens à vendre sur l'ensemble des communes suivantes : Pacé, Montgermont, L'hermitage, Vezin le coquet, Saint-Gilles, Saint-Grégoire.
Honoraires inclus de 3.8% TTC à la charge de l'acquéreur. Prix hors honoraires 500 000 . Dans une copropriété de 157 lots. Aucune procédure n'est en cours. Classe énergie C, Classe climat C Montant estimé des dépenses annuelles d'énergie pour un usage standard : entre 630.00 et 900.00 sur les années 2021, 2022 et 2023 (abonnements compris). Les informations sur les risques auxquels ce bien est exposé sont disponibles sur le site Géorisques : georisques.gouv.fr.