T3 clé en main récent avec balcon et stationnement - petite copropriété au calme
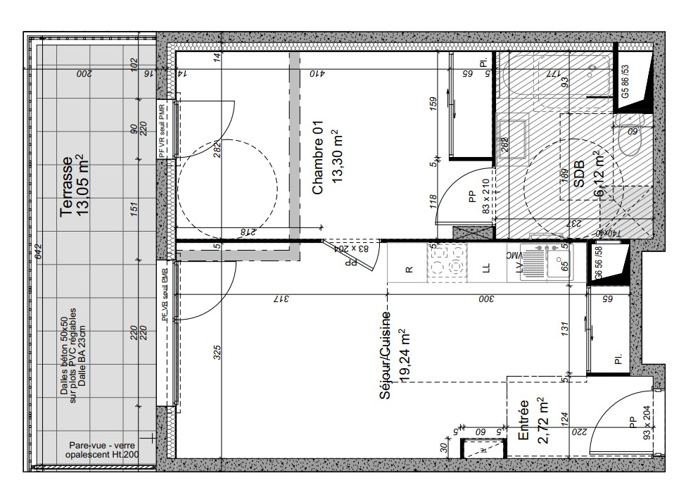
À Saint-Priest, dans un quartier résidentiel calme et recherché, découvrez ce bel appartement T3 de 63 m² situé au 2? et dernier étage d'une petite copropriété à taille humaine construite en 2010. Une résidence bien entretenue, appréciée pour sa tranquillité et très végétalisée.
L'appartement est en excellent état et ne nécessite aucun travaux. Entièrement carrelé, il offre un intérieur soigné, lumineux et fonctionnel.
L'entrée s'ouvre sur un dégagement desservant une agréable pièce de vie, composée d'un salon et d'une cuisine ouverte récente, entièrement équipée et meublée. L'espace est convivial et baigné de lumière, avec un accès direct au balcon, idéal pour profiter d'un extérieur au quotidien sans vis-à-vis.
Le coin nuit, bien séparé, dispose d'un dégagement avec un grand placard de rangement, de deux chambres spacieuses avec placards muraux intégrés, d'une salle de bain avec baignoire, ainsi que de toilettes aux normes PMR.
Les prestations comprennent des fenêtres en double vitrage avec stores manuels, un ascenseur desservant l'étage, ainsi qu'un local vélo au sein de la résidence.
Une place de stationnement privative sur la parcelle est incluse dans le prix, un véritable atout pour le secteur.
Un appartement lumineux, parfaitement entretenu, au sein d'une copropriété récente, calme et à taille humaine. Idéal pour un premier achat, un couple ou un investissement serein.
Honoraires à la charge du vendeur. Dans une copropriété de 112 lots. Aucune procédure n'est en cours. Classe énergie C, Classe climat C Montant moyen estimé des dépenses annuelles d'énergie pour un usage standard, établi à partir des prix de l'énergie de l'année 2021 : entre 397.00 et 538.00 . Les informations sur les risques auxquels ce bien est exposé sont disponibles sur le site Géorisques : georisques.gouv.fr.