Honoraires à la charge de l'acquéreur (Prix hors honoraires : 244800 euros).
Notre agence de KERANGAT à SCEAUX, vous propose :
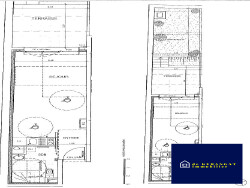
SCEAUX, Avenue du Président Franklin ROOSEVELT, face à l'école LAKANAL, proche du parc et à 6 minutes à pied de la Gare RER Bourg la Reine et des commerces qui l'entourent. Dans une résidence de standing de 2023, ce studio de 28, 15 m² se compose d'une entrée, une belle pièce de vie avec coin cuisine aménagé le tout prolongé par une terrasse et un jardin (sans vis à vis), et une salle d'eau avec WC. Studio lumineux, au calme et offrant de beaux volumes ! Valeur locative : 800 / 820 + 80 de provision de charges
retrouvez nos offres sur : www.dekerangatimmo.com
Honoraires inclus de 4.17% TTC à la charge de l'acquéreur. Prix hors honoraires 244 800 . Dans une copropriété de 30 lots. Aucune procédure n'est en cours. Classe énergie C, Classe climat C Montant moyen estimé des dépenses annuelles d'énergie pour un usage standard, établi à partir des prix de l'énergie de l'année 2021 : entre 366.00 et 495.00 . Les informations sur les risques auxquels ce bien est exposé sont disponibles sur le site Géorisques : georisques.gouv.fr.
Carte pro. CPI92012016000013019
28.15 m²
9 059 €
1
1
1
3 sur 7
4.17 %
80.00 € / mois
Oui
2023
Oui
1
Oui (30 lots)
Consommations énergétiques
Logement économe
136
Logement énergivore (kWhEP/m2/an)
Émissions de gaz à effet de serre
Faible émission de GES
29
Forte émission de GES(kgeqCO2/m2/an)
Contact de Kerangat Sceaux
Contacter gratuitement à l'aide du formulaire ci-dessous.