A Sète (34200), à vendre appartement de 3 pièces de 60 m² environs.
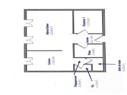
L'agence Golfe de Saint Pierre immobilier vous propose cette appartement situé au premier étage d'un petit immeuble bien entretenu du début du XXe siècle de deux étages. A rafraichir. Il comporte deux chambres, une cuisine aménagée, une salle d'eau et un WC.
L'appartement possède deux petits balcons d'une surface de 2 m². Façade refaite ainsi que la toiture et les communs. Aucun travaux à prévoir concernant la copropriété.
Il se trouve à quelques minutes du Centre ville, école, commerce. La gares se trouve à moins de 10 minutes. On trouve un accès à l'autoroute A9 à 8 km. Pour vos loisirs, vous pourrez compter sur deux cinémas de même que sur un conservatoire, un bassin de natation et un tennis non loin du bien. Des restaurants, des boulangeries, des commerces, quatre supermarchés, des boucheries-charcuteries et des épiceries sont également accessibles. Enfin, le marché Centre-Ville anime les environs.
Les informations sur les risques auxquels ce bien est exposé sont disponibles sur le site Géorisques : www.georisques.gouv.fr.
Contactez Séverine BAILLEUL au 06 50 52 49 51 pour toute visite, Enregistré au RSAC de Montpellier sous le n° 441643053
Honoraires à la charge du vendeur. Dans une copropriété de 5 lots. Aucune procédure n'est en cours. Classe énergie C, Classe climat C Montant moyen estimé des dépenses annuelles d'énergie pour un usage standard, établi à partir des prix de l'énergie de l'année 2021 : entre 580.00 et 840.00 . Les informations sur les risques auxquels ce bien est exposé sont disponibles sur le site Géorisques : georisques.gouv.fr.
Votre conseiller Golfe de Saint Pierre Immobilier : Séverine Bailleul Agent commercial (Entreprise individuelle) RSAC 441643053 RCP 127 100 479
60.2 m²
2 475 €
2 m²
20 m²
3
2
1
1 (séparé)
1 sur 2
110.00 € / mois
1948
Sud
Est
2 (2 m²)
Oui (5 lots)
Consommations énergétiques
Logement économe
114
Logement énergivore (kWhEP/m2/an)
Émissions de gaz à effet de serre
Faible émission de GES
24
Forte émission de GES(kgeqCO2/m2/an)
Contact BAILLEUL
Contacter gratuitement à l'aide du formulaire ci-dessous.