Exclusivité : retrouvez plus de photos ainsi que la vidéo de présentation sur notre site internet www . perledusemnoz . com !
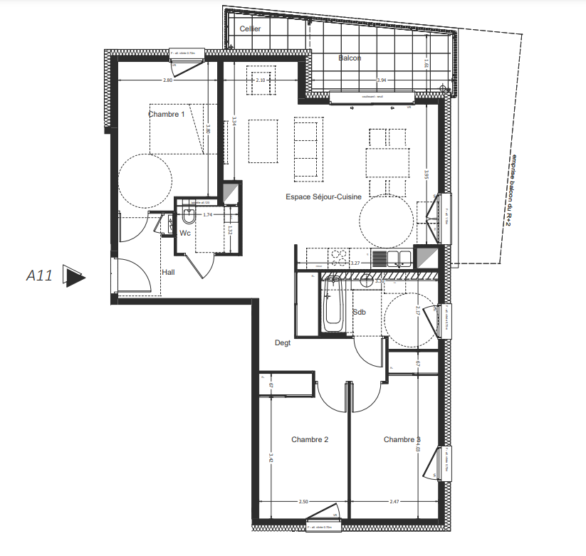
Votre agence locale et familiale, présente sur le bassin annécien depuis plus de 20 ans, vous laisse découvrir cet appartement Type 4 d'une surface de 81,70 m2 Carrez, prenant place en rez-de-jardin d'une copropriété récente (2022) à Seynod (secteur Bois Gentil). Proche des commerces, de l'entrée de l'autoroute ou encore des diverses commodités habituelles (bus, écoles, centres sportifs et culturels, etc), l'habitation est ainsi disposée :
Hall d'entrée WC indépendant Pièce de vie de 29 m2 avec cuisine ouverte équipée Suite parentale avec salle d'eau attenante Dégagement Chambre 2 avec placard intégré Chambre 3 Salle de bain
L'appartement bénéficie d'un très bel extérieur de 47 m2, comprenant une terrasse et un espace en herbe. Une superbe vue dégagée sur les montagnes vous y attend.
En annexes : une place de parking privative est incluse dans le prix affiché. Un garage est également proposé en sus du prix affiché.
Garantie décennale valable pour encore 6 ans. Très bonnes isolations thermiques et phoniques. DPE : B / GES A.
Charges de copropriété, comprenant notamment le chauffage et l'eau chaude : 189 /mois. Taxe foncière 2025 : 1 237. Nb de lots : 240.
Les informations sur les risques auxquels ce bien est exposé sont disponibles sur le site : www. georisque. gouv.fr
Honoraires à la charge du vendeur. Dans une copropriété de 240 lots. Procédure en cours : Fin de la procédure concernant le revêtement de sols dans les garages.. Classe énergie B, Classe climat A Montant moyen estimé des dépenses annuelles d'énergie pour un usage standard, établi à partir des prix de l'énergie de l'année 2023 : entre 680.00 et 1000.00 . Les informations sur les risques auxquels ce bien est exposé sont disponibles sur le site Géorisques : georisques.gouv.fr.