Honoraires à la charge de l'acquéreur (Prix hors honoraires : 370528 euros).
Découvrez l'Exceptionnel Appartement T4 de Grand Standing - Un écrin de raffinement et de modernité au coeur d'un cadre de vie d'exception.
Imaginez-vous franchir le seuil d'un appartement T4 de 81.67 m², entièrement repensé en 2028 pour allier prestige, luxe et fonctionnalité. Ce bijou immobilier, situé au 2ème étage, est une invitation à vivre une expérience de vie unique, où chaque détail a été pensé pour votre épanouissement.
Dès l'entrée, vous serez saisi par l'ampleur des volumes et la lumière naturelle qui inonde les pièces grâce à des baies vitrées généreuses. Les hauts plafonds et les matériaux nobles (marbre, parquet massif, finitions sur mesure) créent une atmosphère chaleureuse et sophistiquée.
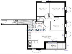
Cet appartement, conçu pour une famille ou des hôtes exigeants, se compose de 4 pièces dont 3 chambres, offrant un équilibre parfait entre intimité et convivialité. Le salon spacieux de 25 m², idéal pour recevoir ou se détendre, s'ouvre sur un balcon de 6.76 m², parfait pour vos petits-déjeuners en plein air ou vos soirées étoilées.
La cuisine, semi-ouverte et équipée de matériaux haut de gamme, est un chef-d'oeuvre de design et de praticité. Les chambres généreuses (dont une suite parentale) bénéficient de rangements intégrés et de vues dégagées, tandis que la salle de bains et le WC indépendant complètent cet écrin de bien-être.
Avec ses 2 places de stationnement intérieures, votre véhicule est à l'abri des intempéries et des regards indiscrets. Un atout rare en milieu urbain, qui ajoute une touche de praticité et de sécurité à votre quotidien.
Vivre dans cet appartement, c'est s'offrir une qualité de vie exceptionnelle. Les isolation phonique et thermique haut de gamme garantissent un confort acoustique et énergétique optimal, tandis que les équipements domotiques (chauffage, éclairage, sécurité) vous permettent de tout contrôler d'un simple geste.
Imaginez les matins d'hiver, blotti dans votre salon face à une cheminée électrique design, ou les étés, profitant d'une brise légère sur votre balcon tout en savourant un verre de vin. Cet appartement est bien plus qu'un logement : c'est une expérience sensorielle.
Bien que l'adresse reste discrète pour préserver votre intimité, sachez que cet appartement est niché dans un quartier où tout est à portée de main. À quelques minutes à pied, vous trouverez plusieurs commerces de proximité, un parc verdoyant pour vos balades dominicales, et plusieurs écoles réputées si vous avez des enfants. Les transports en commun sont également à proximité, offrant un accès facile aux axes majeurs de la ville.
Ce n'est pas qu'un appartement : c'est une philosophie de vie. Un lieu où chaque détail a été pensé pour votre bonheur, où le luxe se mêle à la praticité, et où chaque jour devient une parenthèse de bien-être.
Prêt à écrire le prochain chapitre de votre vie dans ce palais moderne ? Contactez dès aujourd'hui nos experts S&C Immo !
S&C Immo Votre partenaire en immobilier de prestige ? 01 23 45 67 89 | ?? contact@scimmo.fr
Dans une copropriété de 45 lots. Aucune procédure n'est en cours. Non soumis au DPE. Les informations sur les risques auxquels ce bien est exposé sont disponibles sur le site Géorisques : georisques.gouv.fr.