Honoraires à la charge de l'acquéreur (Prix hors honoraires : 371904 euros).
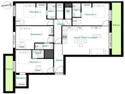
? Appartement T4 88,5 m² 4 chambres 4 salles de douche Rénovation Totale Montage Investisseur Idéal Cet appartement représente un projet clé en main, entièrement rénové, pensé pour optimiser la rentabilité locative, notamment en colocation haut de gamme.Il combine la sécurité d'un bien ancien, la performance d'une rénovation intégrale, et une répartition intérieure parfaitement adaptée aux besoins des locataires actuels. ? TRAVAUX : CE QUI A ÉTÉ RÉALISÉ (RÉNOVATION COMPLÈTE) L'appartement a été entièrement refait à neuf : Structure & redistribution Redistribution complète des pièces pour créer 4 chambres indépendantes, chacune avec sa salle de douche privative Optimisation des circulations et création d'un véritable espace commun lumineux Électricité & plomberie Tableau électrique remis aux normes Plomberie refaite intégralement Création des 4 salles de douche + évacuations + ventilation Installation complète buanderie (LL/SL) Cuisine & pièces de vie Cuisine neuve : évier, frigo, four, plaques, meubles Pièce de vie réaménagée pour offrir un séjour spacieux adapté à la colocation Revêtements & finitions Sols neufs dans tout l'appartement Peintures entièrement refaites Faïences neuves dans chaque SDD Menuiseries modernisées Aménagement des rangements & dressings Mobilier & équipement Chaque chambre dispose de :Bureau Lit double Rangements / dressing
Salon meublé (TV, canapé, table à manger ) Cuisine équipée Buanderie fonctionnelle Ce bien est donc prêt à louer immédiatement, sans aucun frais supplémentaire. ? LE MONTAGE : POURQUOI C'EST IDÉAL POUR UN INVESTISSEUR Cet appartement est vendu dans un format permettant : **1?? Un montage clair entre : Prix immobilier Travaux Mobilier Ingénierie / maîtrise d'oeuvre** Ce découpage permet une lecture transparente des coûts, idéale pour un investisseur souhaitant optimiser fiscalement (amortissements, LMNP, colocation). Répartition indicative : Immobilier : 175 000 Travaux réalisés : 160 000 Mobilier : 19 400 Ingénierie, coordination travaux : 17 500 Frais de notaire : env. 14 000 2?? Une rentabilité supérieure à un T4 standard Grâce à : 4 chambres indépendantes 4 salles de douche Surface optimisée Aucun travaux à prévoir Loyer total largement supérieur à la location classique
3?? Un produit prêt à l'emploi : Turn-key Rénovation neuve Mobilier inclu Cuisines & SDD prêtes Zéro travaux Zéro aléas Rentabilité immédiate ?? Configuration par chambre Chambre 1 Bureau Dressing Salle de douche privative (SDD 1) Chambre 2 Dressing Bureau Salle de douche privative (SDD 2) Chambre 3 Bureau Dressing Salle de douche privative (SDD 3) Proche buanderie Chambre 4 Très lumineuse Dressing Bureau Salle de douche privative (SDD 4) Accès balcon ?? Espaces communs Grand salon / salle à manger Cuisine ouverte moderne Accès balcon Lumineux et agréable pour la vie en communauté ? Annexes Buanderie WC indépendant Balcon côté Est + balcon côté Ouest Cellier Parking ? EN SYNTHÈSE Un bien rare, optimisé, rentable, entièrement rénové, parfait pour :?? Une famille souhaitant 4 chambres + confort?? Une colocation premium (4 chambres / 4 SDD !)?? Un investissement patrimonial sans auc...
89 m²
4 179 €
5
5
4
1
2
Contact SAPHEA PATRIMOINE
Contacter gratuitement à l'aide du formulaire ci-dessous.