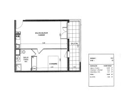
Forom Immobilier vous propose cet appartement T2 d'une surface d'environ 44 m² au 3ème étage situé dans une résidence sécurisée sur la commune de Toulouse secteur Bellefontaine.
Le logement dispose d'un séjour, une cuisine, une chambre, une salle d'eau avec un WC et une place de parking.
Loyer mensuel : 536,73 / mois soit 486,73 HC + 50 CL Rentabilité : 7,80% brute Charges de copropriété : 77,66 / mois Taxe foncière : 976 / an Date de fin de bail : 03/07/2027 DPE : C Nombre de lots : 36 Honoraires charge vendeur
La résidence Accès facile aux transports en commun et aux grands axes principaux.
Honoraires à la charge du vendeur. Dans une copropriété de 36 lots. Aucune procédure n'est en cours. Classe énergie C, Classe climat A Montant moyen estimé des dépenses annuelles d'énergie pour un usage standard, établi à partir des prix de l'énergie de l'année 2023 : entre 420.00 et 620.00 . Les informations sur les risques auxquels ce bien est exposé sont disponibles sur le site Géorisques : georisques.gouv.fr.
44 m²
1 875 €
9 m²
2
1
1
1
1 (9 m²)
1
Oui (36 lots)
Consommations énergétiques
Logement économe
137
Logement énergivore (kWhEP/m2/an)
Émissions de gaz à effet de serre
Faible émission de GES
4
Forte émission de GES(kgeqCO2/m2/an)
Contact Forom® Immobilier
Contacter gratuitement à l'aide du formulaire ci-dessous.