Honoraires à la charge de l'acquéreur (Prix hors honoraires : 378000 euros).
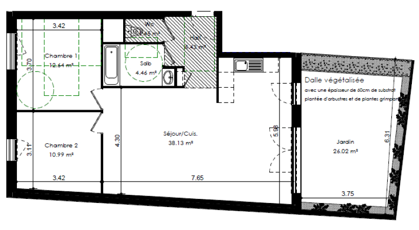
Prochainement, découvrez une résidence unique en son genre. Nichée au coeur du quartier dynamique de Venissieux, dans la ZAC Grand Parilly, cette adresse d'exception, bénéficie d'une connexion directe avec la ville de Lyon et se situe à proximité immédiate de toutes les commodités. Conçue par les prestigieux cabinets d'architectes, cette résidence se distingue par une double architecture remarquable, alliant persiennes barcelonaises, vastes coursives, ossatures en bois, et des coeurs d'îlots vivants et verdoyants. Ne manquez pas l'opportunité de vivre dans un lieu avant-gardiste. Contactez-nous dès maintenant pour plus d'informations.
Dans une copropriété de 177 lots. Aucune procédure n'est en cours. Non soumis au DPE. Les informations sur les risques auxquels ce bien est exposé sont disponibles sur le site Géorisques : georisques.gouv.fr.