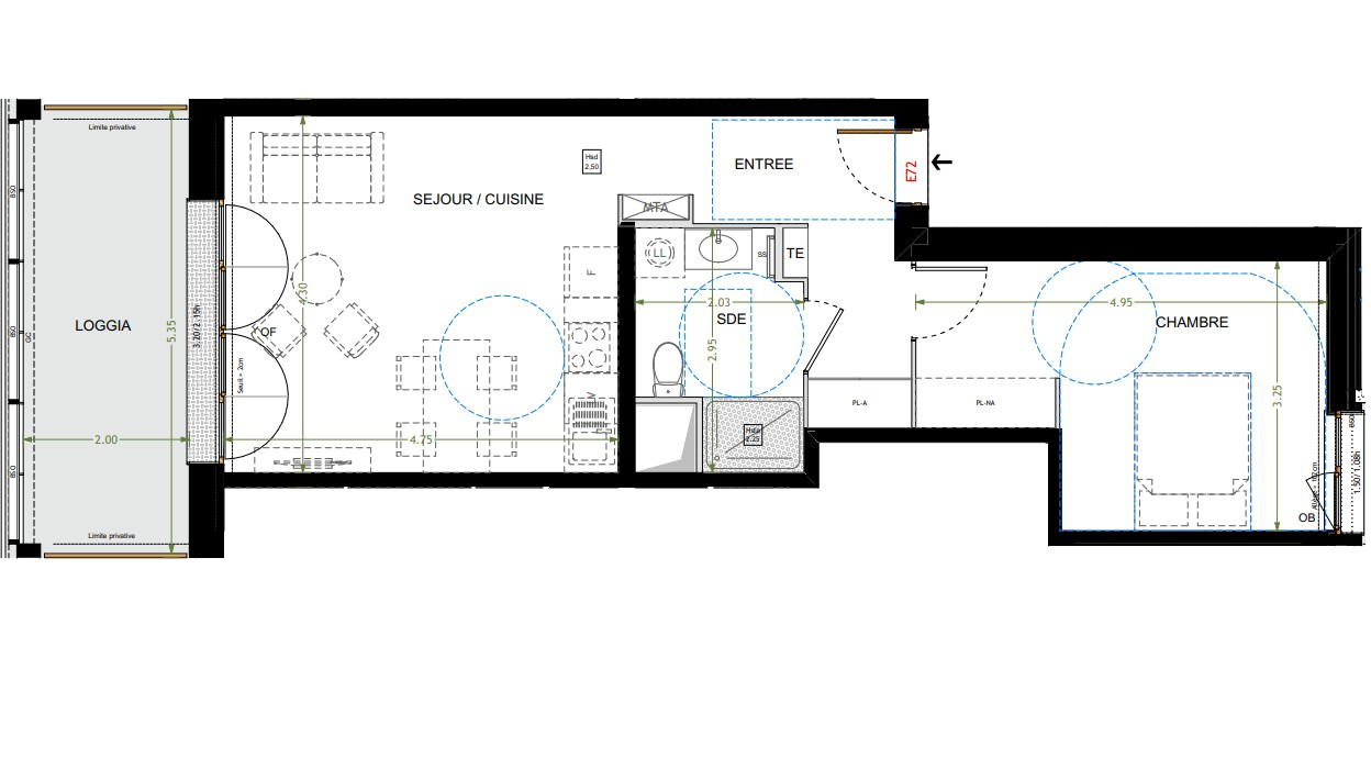
David Lescuyer vous propose LE CLOS DU MOULIN, Située au 14 rue Chausson, cette résidence de 15 logements libres, sans social sera livrée en 2027 : ? Du T2 au T4 ? du R-1 au R+2+Attique ? 10 places de stationnement ? un local vélo en sous-sol ? un espace extérieur pour chaque logement Situé dans la bande des 300 mètres du QPV Moulin à vent le programme est éligible à la TVA réduite. A 350 mètres du Tramway T6 arrêt Moulin à vent et de la ligne de bus majeure C12, elle est au coeur de toutes les commodités : commerces, de l'école au lycée, pharmacie, Poste Résidence intimiste, elle est entièrement close, avec une palette de couleur douce et chaleureuse. Le coeur d'ilot arboré est un espace privilégié, plusieurs strates végétales seront présentes, une sélection de végétaux indigènes, rustiques, adaptables au climat. N'omettant pas la biodiversité, nous retrouverons des nichoirs à oiseaux, hôtels à insectes, ganivelles laissant passer la petite faune 314 m² de pleine terre seront créés avec ce projet quand le PLUH exigeait 112 m². Aujourd'hui, aucun arbre n'est présent sur la parcelle. Le Clos du Moulin répond à la RE 2020 et entreprend de respecter le Référentiel NF HABITAT HQE. Le suivi d'une démarche environnementales permettra de suivre avec méthodologie une vision du projet dans son ensemble : choix de matériaux locaux, sobriété énergétique et d'usage, réflexion sur les déplacements doux, sur l'intégration de végétaux au projet, et permettra surtout de viser un confort thermique, visuel et acoustique accrus, tout en apportant une réflexion sur les flux générés et consommés par les bâtiments.
N'hésitez pas à me contacter pour plus de renseignements.
Honoraires à la charge du vendeur. Dans une copropriété de 19 lots. Aucune procédure n'est en cours. Non soumis au DPE. Les informations sur les risques auxquels ce bien est exposé sont disponibles sur le site Géorisques : georisques.gouv.fr.