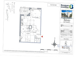
Vénissieux, à deux pas du centre,' 30 Bd Ambroise Croizat' dans réalisation récente de 2017, type 2 de 46m² en étage élevé où vous retrouverez toute une vie de quartier avec ses commerces et tramway. Appartement en bon état avec un séjour de21m² donnant sur balcon, une grande chambre avec rangement, salle de bain avec douche, WC indépendant et chauffage au gaz. PRIX DE CE CONFORT 128 000 uros, (honoraires à la charge du vendeur) + possibilité d'acquérie un un garage en sous-sol. Charges annuelles 968 soit 80.66 uros mensuel (entretien de chaudière + parties communes). Bien soumis au régime de la copropriété 59 lots. Pas de procédure en cours. DPE C(114kwh/m2/an) et gaz effet de serre C(22kg co2/m2/an). CONFIANCE IMMOBILER, vous accompagne dans tous vos projets (estimation, vente, défiscalisation immobilière).Dossier suivi par Christophe MOREL agissant sous statut d'agent commercial ADC69012022000002005 , barème d'honoraires (se reporter au site groupeconfiance). Agence transaction 04.37.43.41.31
Honoraires à la charge du vendeur. Dans une copropriété de 40 lots. Quote-part moyenne du budget prévisionnel 968 /an. Aucune procédure n'est en cours. Classe énergie C, Classe climat C Montant estimé des dépenses annuelles d'énergie pour un usage standard : entre 590.00 et 830.00 sur les années 2021, 2022 et 2023 (abonnements compris). Les informations sur les risques auxquels ce bien est exposé sont disponibles sur le site Géorisques : georisques.gouv.fr.