VIC-LA-GARDIOLE : Cet appartement 3 pièces vous est présenté par Rebecca : O6. 95. 17. 29. 8O. Situé dans un secteur calme et résidentiel, proche du centre-ville et 500 mètres de l'étang de Vic, cet appartement T3 au 1er étage et dernier étage avec balcon vous séduira par son cadre naturel, sa proximité avec la mer et son accessibilité.
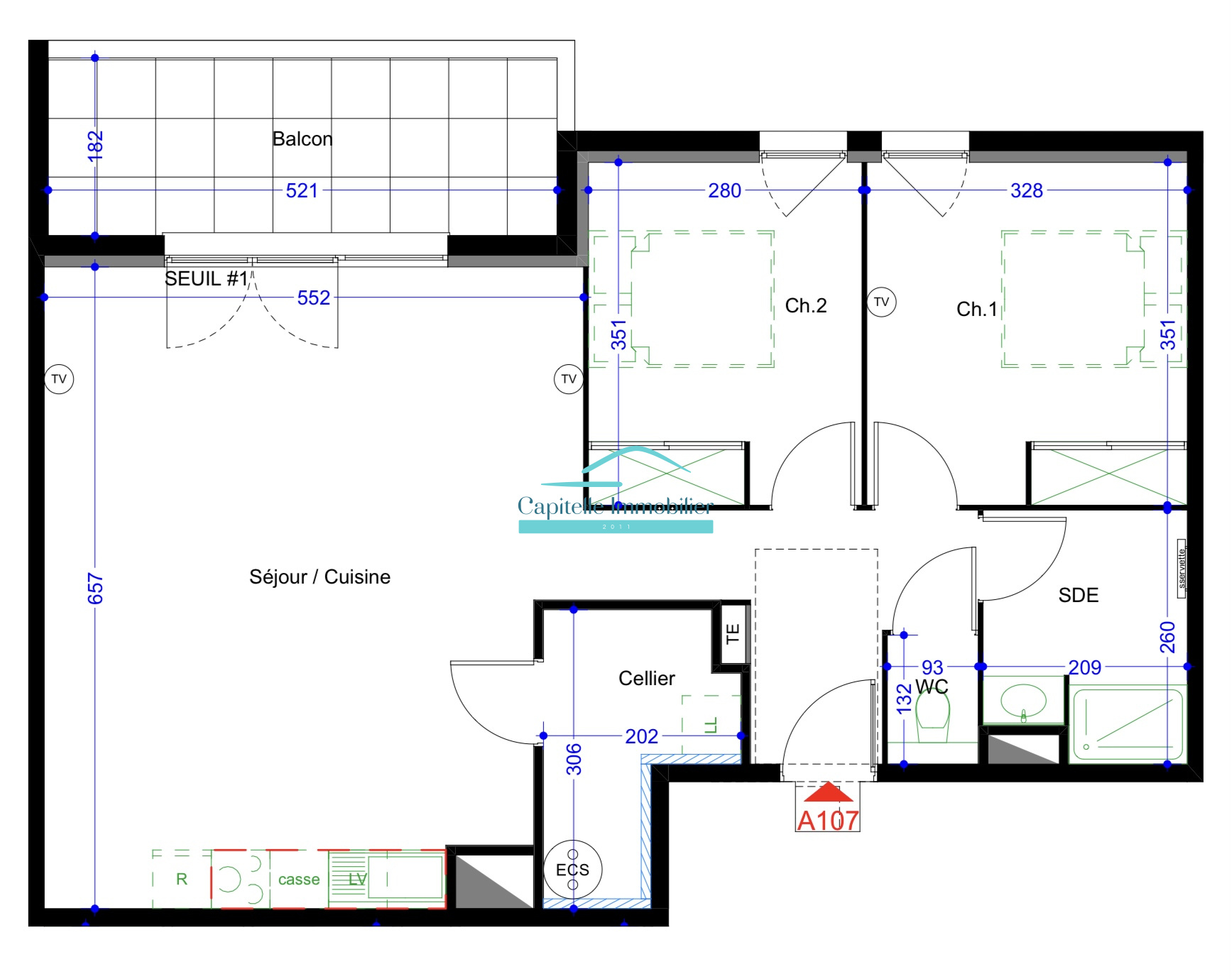
Au sein d'une résidence récente répondant aux dernières normes environnementales, il propose une pièce de vie spacieuse de près de 30 m², . Vous y trouverez également deux chambres, un dressing, une salle d'eau, ainsi qu'un WC indépendant et une place de stationnement privative.
Le quotidien y est facilité : crèches, écoles, commerces, restaurants, professions médicales et transports en commun sont accessibles à pied. Vic-la-Gardiole dispose aussi d'une vie de village animée avec deux marchés par semaine (mercredi et dimanche matin), ainsi qu'un marché nocturne tout l'été, idéal pour profiter de l'ambiance méditerranéenne.
Accès rapide à l'autoroute A9, gare de Vic-Mireval à 3 min, TGV Sète à 20 min, Montpellier à 25 min, aéroport à 25 min. Une belle opportunité pour les familles ou les couples, alliant confort, praticité et qualité de vie.
À visiter sans tarder !Prix : 3O9 9OO FAI (honoraires à charge vendeur).Bien soumis au statut juridique de la copropriété (26 lots principaux).DPE : A / GES : A LA FRANCHISE IMMOBILIÈRE Saint-Jean-de-Védas O6. 95. 17. 29. 8O
Les informations sur les risques auxquels ce bien est exposé sont disponibles sur le site : www.georisques.gouv.frCe bien vous est présenté par Rebecca Exile : O6.95.17.29.8O. RSAC 920 385 101
Honoraires à la charge du vendeur. Dans une copropriété de 26 lots. Aucune procédure n'est en cours. Classe énergie A, Classe climat A Montant estimé des dépenses annuelles d'énergie pour un usage standard : entre 400.00 et 600.00 sur les années 2021, 2022 et 2023 (abonnements compris). Les informations sur les risques auxquels ce bien est exposé sont disponibles sur le site Géorisques : georisques.gouv.fr. Ce bien vous est proposé par un agent commercial (Entreprise individuelle).