Secteur Maisons-neuves : L'agence César et Brutus syndic de la copropriété vous propose en exclusivité un appartement situé au 7 rue Jean Louis Maubant à Villeurbanne à deux pas de Lyon 3ème.
Il est situé dans un quartier moderne, avec des résidences récentes, le cadre est à la fois urbain et relativement calme : on y trouve des espaces résidentiels, des commerces de proximité, des services, ce qui rend la vie quotidienne pratique.
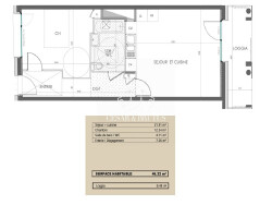
Ce deux pièces de 46 m² au 2ème étage se situe dans une copropriété très bien entretenue et sécurisée de 2016.
L'appartement traversant se compose: -d'une entrée donnant sur une pièce de vie lumineuse de 22 m², ouverte sur un balcon sans vis-à-vis de 7m² -d'une cuisine équipée ouverte sur le séjour -d'une chambre de 13m² -d'une salle de bains et d'un WC.
Il existe de nombreux transports à 2 pas de l'appartement : - Plusieurs lignes de bus (C3, C9, C11) à proximité. - Proximité de la station de métro Reconnaissance-Balzac T3, à environ 600-650 m et du futur T6
Un garage en sous-sol est proposé au prix de 20 000 en supplément.
Charges de copropriété : 117 /mois Chauffage collectif gaz (compteur individuel) Fenêtres PVC double vitrage Volets roulants électrique DPE C (logement non impacté par les nouvelles lois climat et environnementale). Pas de procédure en cours - nombre de lots d'habitations : 55
Envie d'en savoir plus ? Contactez Lauriane SAFRANI Numéro RSAC : 834 182 743 Référence de l'annonce : LS-7839
Honoraires à la charge du vendeur. Dans une copropriété de 110 lots. Aucune procédure n'est en cours. Classe énergie C, Classe climat C Montant estimé des dépenses annuelles d'énergie pour un usage standard : entre 420.00 et 610.00 sur les années 2021, 2022 et 2023 (abonnements compris). Les informations sur les risques auxquels ce bien est exposé sont disponibles sur le site Géorisques : georisques.gouv.fr.