Appartement 2 pièces de charme avec jardin privatif et terrasse
Situé dans un quartier résidentiel calme et pavillonnaire, à seulement 400 mètres du métro Cusset et à proximité immédiate des commerces, cet appartement est idéal pour ceux qui recherchent confort, intimité et accessibilité. Parfaitement connecté aux universités de la Doua et Villeurbanne, ce T1bis de 33,40 m² offre une qualité de vie exceptionnelle dans une résidence intimiste de seulement 12 logements répartis en deux petits bâtiments de 2 étages.
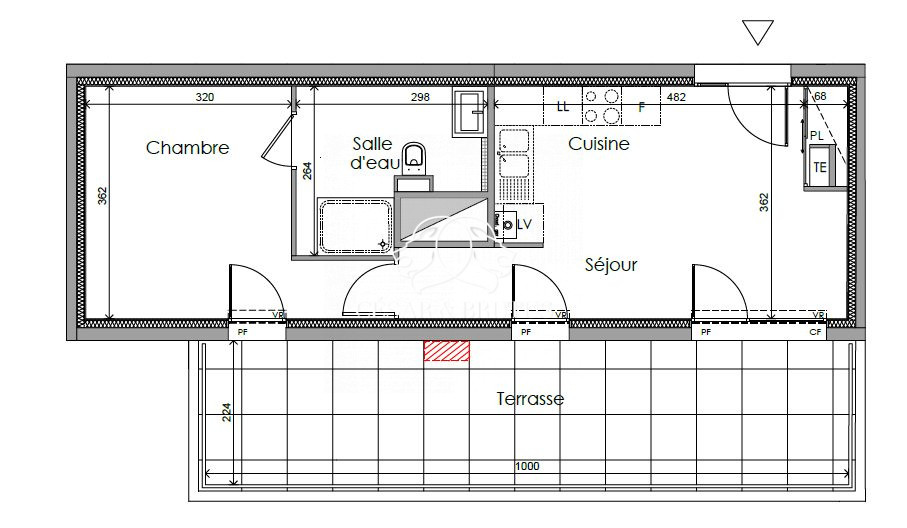
Découvrez ce rez-de-jardin lumineux et totalement indépendant de la rue, avec ses espaces extérieurs privés : Une belle entrée avec grand placard intégré pour un rangement optimal. Pièce de vie de 20 m², baignée de lumière naturelle grâce à une grande baie vitrée orientée plein Sud, ouvrant sur une terrasse de 9 m² et un jardin arboré de 28 m², idéal pour profiter de moments en extérieur. Cuisine ouverte à aménager selon vos envies, offrant une belle opportunité de personnalisation.
Espace nuit de 5 m² avec verrière, est séparé par une porte coulissante pour préserver l'intimité.
Salle d'eau moderne et confortable avec fenêtre, conçue pour allier praticité et bien-être.
Une place de parking extérieure est également disponible en option (18.000 ). Ce bien bénéficie d'un chauffage individuel par pompe à chaleur, assurant confort et économie d'énergie.
Prix de vente : 230.000 (honoraires d'agence inclus à la charge du vendeur)
Estimation frais de notaire : 5.500 charges de copropriété prévisionnelles modérées (50 /mois).
Vous souhaitez en savoir plus ou organiser une visite de cet appartement ? Contactez Jérémie Voslion, de l'agence immobilière ACCANO, spécialisée en immobilier lyonnais.
Les informations sur les risques auxquels ce bien est exposé sont disponibles sur le site Géorisques : www.georisques.gouv.fr.
Honoraires à la charge du vendeur. Dans une copropriété de 18 lots. Aucune procédure n'est en cours. Classe énergie B, Classe climat A Montant estimé des dépenses annuelles d'énergie pour un usage standard : entre 300.00 et 500.00 sur les années 2021, 2022 et 2023 (abonnements compris). Les informations sur les risques auxquels ce bien est exposé sont disponibles sur le site Géorisques : georisques.gouv.fr.
Votre conseiller ACCANO : Gérant - Jérémie VOSLION Carte T CPI 6901 2019 000 038 984 RCP GAN 191 210 345
33.4 m²
6 886 €
20 m²
2
1
1
1
2024
Sud
1
1
Oui (18 lots)
Consommations énergétiques
Logement économe
100
Logement énergivore (kWhEP/m2/an)
Émissions de gaz à effet de serre
Faible émission de GES
5
Forte émission de GES(kgeqCO2/m2/an)
Contact ACCANO
Contacter gratuitement à l'aide du formulaire ci-dessous.