Honoraires à la charge de l'acquéreur (Prix hors honoraires : 195000 euros).
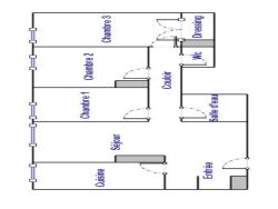
VITRY SUR SEINE - Avenue Rouget de Lisle - Tram T9 WATTEAU - RONDENAY - Futur métro ligne 15 Dans un quartier en pleine évolution, un appartement de 3/4 pièces de 64,84 m2 refait à neuf au 5ème et dernier étage d'un immeuble des année 60. L'appartement est composé de 4 pièces comprenant : entrée avec placard, cuisine séparée aménagée, séjour (possibilité double séjour), 3 chambres ou double séjour et deux chambres, dressing, dégagement, salle d'eau et WC. L'appartement a été refait avec goût. Eau chaude et chauffage collectif. Une cave en sous sol complète le bien. Idéal famille ou investisseurs.
Dans une copropriété de 124 lots. Aucune procédure n'est en cours. Logement à consommation énergétique excessive : Classe énergie G, Classe climat F. Les informations sur les risques auxquels ce bien est exposé sont disponibles sur le site Géorisques : georisques.gouv.fr.
65 m²
3 000 €
4
3
1
1 (séparé)
5 sur 5
342.00 € / mois
1960
Oui
Oui
Oui (124 lots)
Consommations énergétiques
Logement économe
448
Logement énergivore (kWhEP/m2/an)
Émissions de gaz à effet de serre
Faible émission de GES
91
Forte émission de GES(kgeqCO2/m2/an)
Contact maison rignault
Contacter gratuitement à l'aide du formulaire ci-dessous.