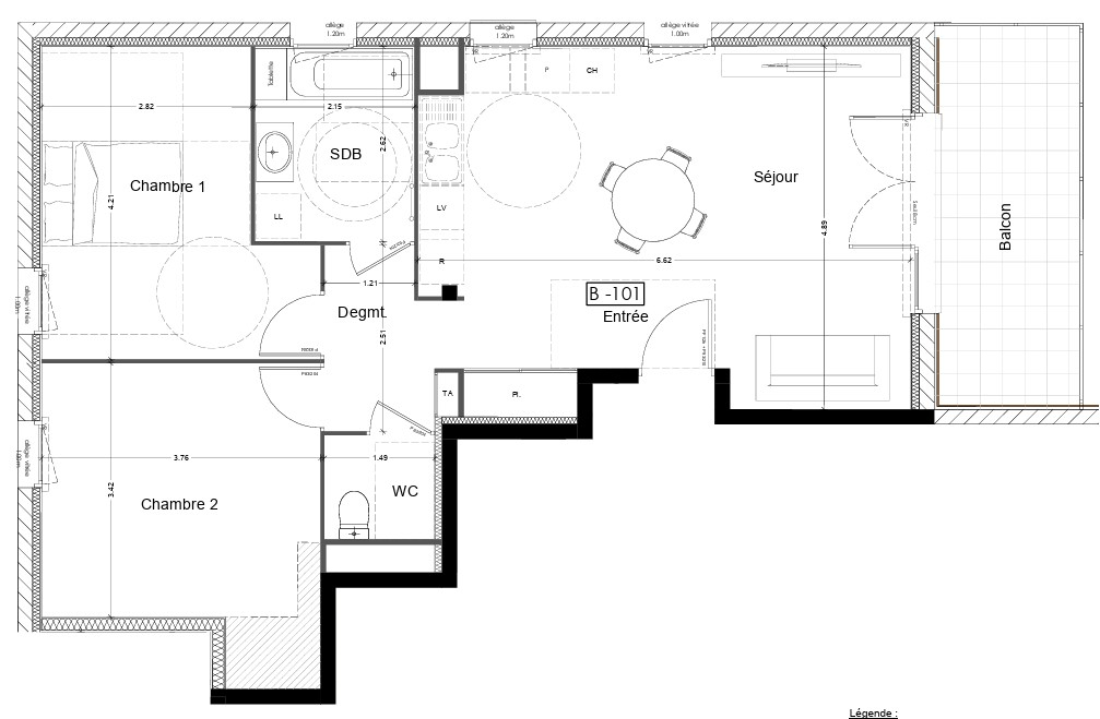
Je vous propose à la vente ce magnifique T3 Rez de chaussé lové dans un cadre idyllique. Cet appartement est composé d'une pièce de vie agréable de 21 m² donnant sur un balcon de 7,27 m², d'une première chambre avec sa salle d'eau, d'une deuxième chambre, d'une salle de bains et des toilettes séparés. Un petit cocon douillet plein de charme et de confort. La résidence comprendra 45 logements allant du T2 au T5, le projet immobilier « Le Roc » offre des appartements élégants et chaleureux. Les logements seront dotés d'une prestation unique avec un mobilier fait sur mesure et un pack décoration, alliant montagne et modernité. Equipés de garages avec un accès direct aux appartements, les véhicules seront protégés de la neige. Le projet sera en harmonie avec le paysage typique de la station grâce à une architecture traditionnelle. Tous les aménagements prévus contribueront au respect de l'environnement végétal et animal existant sur le versant. LOCALISATION PRIVILÉGIÉE Le Roc est un « concentré » de Valmorel, station d'une grande qualité architecturale respectueuse du grand paysage Je serais ravie de vous accompagner dans ce très beau projet Mandat: 21580MB2112 Agent commercial: Mathilde Bessy au 06-80-41-54-78 Mathilde FIDES-HERMES IMMO (EI) Agent Commercial - Numéro RSAC : 827810631 - VilleFranche-Tarare.