APPARTEMENT AU COEUR DE LA VIEILLE VILLE DE BONIFACIO
Bonifacio 20169
0
TROP TARD
SOUS COMPROMIS
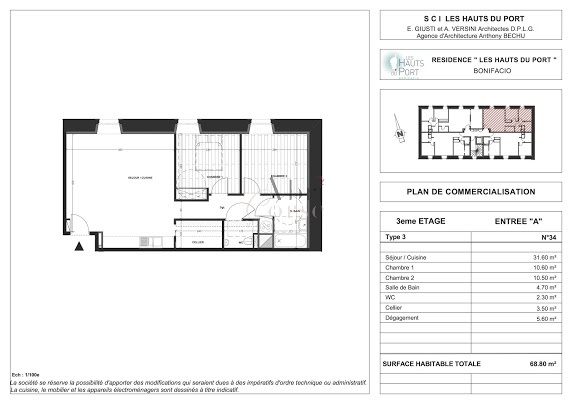
Bel appartement au c?ur de la vieille ville, traversant spacieux avec cheminée, 3 chambres , un grand salon séjour avec cuisine, une salle de douche, 2 wc. Terrasse donnant sur le goulet de BONIFACIO
Me consulter pour d autres biens sur Bonifacio
A BIENTÖT
Cette annonce référence 256755 vous est présentée par votre agent commercial BSK Immobilier CHRISTELLE POTTIER (EI) immatriculé au RSAC de NANTES (44200) sous le numéro 79475013300017.
Prix du bien : 299 000,00 €
Les honoraires d'agence sont à la charge du vendeur.
A propos des performances énergétiques :
Date de réalisation du diagnostic énergétique : 02/02/2023
Score DPE : 344 kWhEP/m²/an
Score GES : 10 kgepCO2/m²/an
Montant estimé des dépenses annuelles d'énergie pour un usage standard : entre 1400.00 € et 1700.00 € par an. Prix moyens des énergies indexés sur l'année 2023 (abonnements compris).
Les informations sur les risques auxquels ce bien est exposé sont disponibles sur le site Géorisques : www.georisques.gouv.fr
74 m²
4 041 €
5
3
1
2 sur 2
Consommations énergétiques
Logement économe
344
Logement énergivore (kWhEP/m2/an)
Émissions de gaz à effet de serre
Faible émission de GES
10
Forte émission de GES(kgeqCO2/m2/an)
Contact Iad France - Christelle POTTIER
Contacter gratuitement à l'aide du formulaire ci-dessous.