Découvrez cet appartement T4 d'exception d'une surface habitable de 104 m².
Niché dans un immeuble de grand standing construit en 1992, cet appartement situé au 2ème étage avec ascenseur allie charme et modernité.
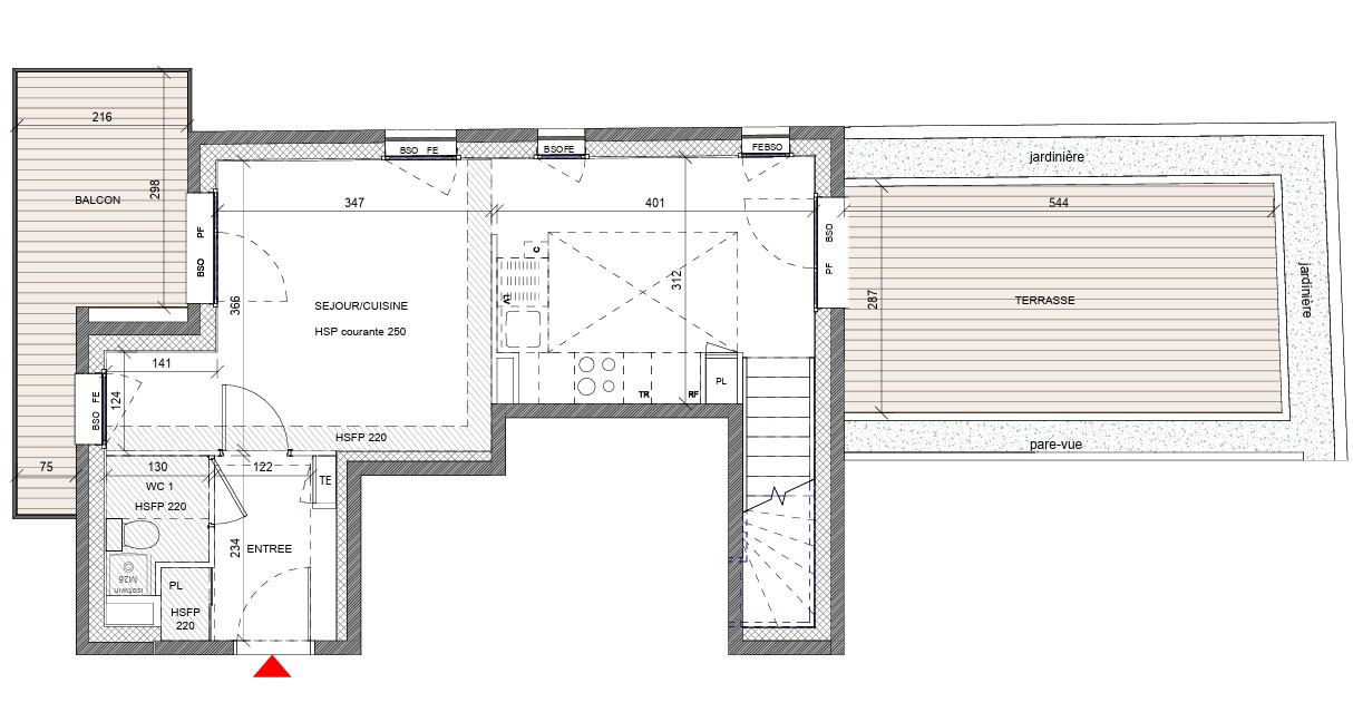
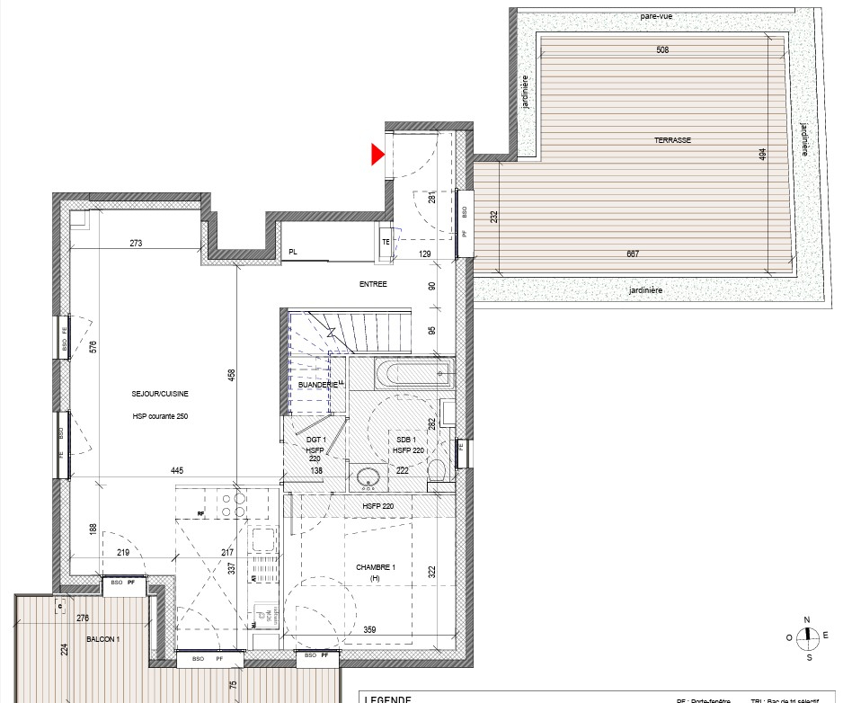
En entrant, vous serez immédiatement séduit par son séjour spacieux de 31 m² ouvrant sur une terrasse de 9 m2 avec vue sur une cour intérieure arborée. Les trois chambres, dont une suite parentale, offrent un espace de vie confortable et intime. La salle de bains et la salle d'eau complètent l'ensemble.
L'appartement dispose également de deux WC indépendants, d'une cuisine indépendante et d'un ascenseur pour un accès facilité.
Cet appartement est en très bon état, avec des parties communes en excellent état. Le chauffage individuel et les doubles vitrages (stores électriques) garantissent un confort optimal tout au long de l'année. Nombreux rangements.
.Un garage en sous-sol de 16m2 et une cave de 5 m² complètent ce bien d'exception.
Côté commodités, vous trouverez commerces, bus, tramway, métro et gare multimodale à 5 minutes à pied. De plus, vous serez à proximité de la Presqu'île, avec autour de vous mairie, marché, université et hôpital.
Ne manquez pas cette opportunité unique de vivre dans un cadre de vie exceptionnel, au coeur de Lyon. Contactez-nous dès maintenant pour organiser une visite.
Honoraires à la charge du vendeur. Dans une copropriété de 70 lots. Quote-part moyenne du budget prévisionnel 2 124 /an. Aucune procédure n'est en cours. Classe énergie C, Classe climat C Montant estimé des dépenses annuelles d'énergie pour un usage standard : entre 1320.00 et 1840.00 sur les années 2021, 2022 et 2023 (abonnements compris). Les informations sur les risques auxquels ce bien est exposé sont disponibles sur le site Géorisques : georisques.gouv.fr.