C'est à proximité immédiate et au Nord du très beau parc des Prébendes, à quelques minutes à pied de la gare de Tours et des commerces que se situe cet appartement de 55m2 et son jardinet ensoleillé.
Situé dans une rue calme, l'immeuble propose de très beaux espaces verts et une grande quiétude dans ce quartier privilégié.
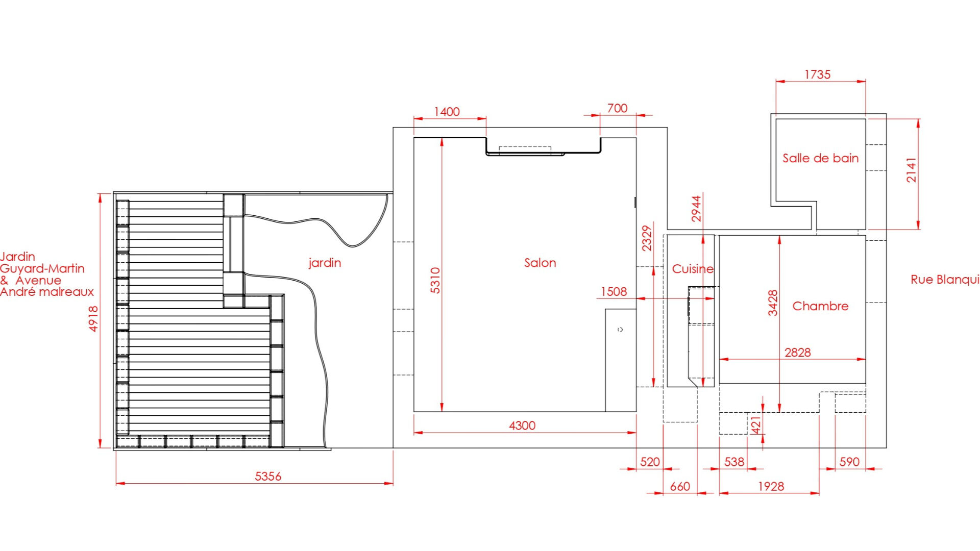
Une vaste entrée avec rangements dessert d'une part une grande pièce de vie ouverte sur la terrasse et le jardin avec cuisine aménagée et équipée offrant tout le confort moderne et d'autre part une chambre spacieuse dotée d'une salle de bain de belle taille avec baignoire à remous. Une petite buanderie permet l'organisation plus facile du linge. Une belle hauteur sous plafond apporte luminosité et espace à cet appartement.
Un charmant jardin de ville, à l'abri des regards, tel un véritable havre de paix permet de cultiver quelques plantes, de manger dehors et offre des moments de détente au soleil en toutes saisons.
Situé en rez-de-chaussée, il est facilement accessible pour des personnes à mobilité réduite ou des personnes âgées.
Possibilité d'une place de stationnement dans la résidence.
Cette annonce référence 267822 vous est présentée par votre agent commercial BSK Immobilier CLEMENTINE LABROSSE (EI) immatriculé au RSAC de TOURS (37000) sous le numéro 53266725000023.
Prix du bien : 225 000,00 €
Les honoraires d'agence sont à la charge du vendeur.
A propos des performances énergétiques :
Date de réalisation du diagnostic énergétique : 06/03/2023
Score DPE : 233 kWhEP/m²/an
Score GES : 31 kgepCO2/m²/an
Montant estimé des dépenses annuelles d'énergie pour un usage standard : entre 813.00 € et 1099.00 € par an. Prix moyens des énergies indexés sur l'année 2021 (abonnements compris).
Les informations sur les risques auxquels ce bien est exposé sont disponibles sur le site Géorisques : www.georisques.gouv.fr
55 m²
4 091 €
2
1
1
1988
Consommations énergétiques
Logement économe
233
Logement énergivore (kWhEP/m2/an)
Émissions de gaz à effet de serre
Faible émission de GES
31
Forte émission de GES(kgeqCO2/m2/an)
Contact CLEMENTINE LABROSSE
Contacter gratuitement à l'aide du formulaire ci-dessous.