Appartement Bedee 3 pièces 60 m2 - Proche bourg - Balcon et gar
Bédée 35137
0
Honoraires à la charge de l'acquéreur (Prix hors honoraires : 154500 euros).
AG IMMOBILIER COMMISSIONS REDUITES Pacé : (ACHAT/VENTE) BEDEE
Cet appartement vient d'être vendu par notre agence ! Si vous aussi vous avez un projet de vente ou d'achat n'hésitez plus, contactez nous! Nos estimations sont gratuites et nos honoraires (charge acquéreur) sont les moins chers du secteur !!
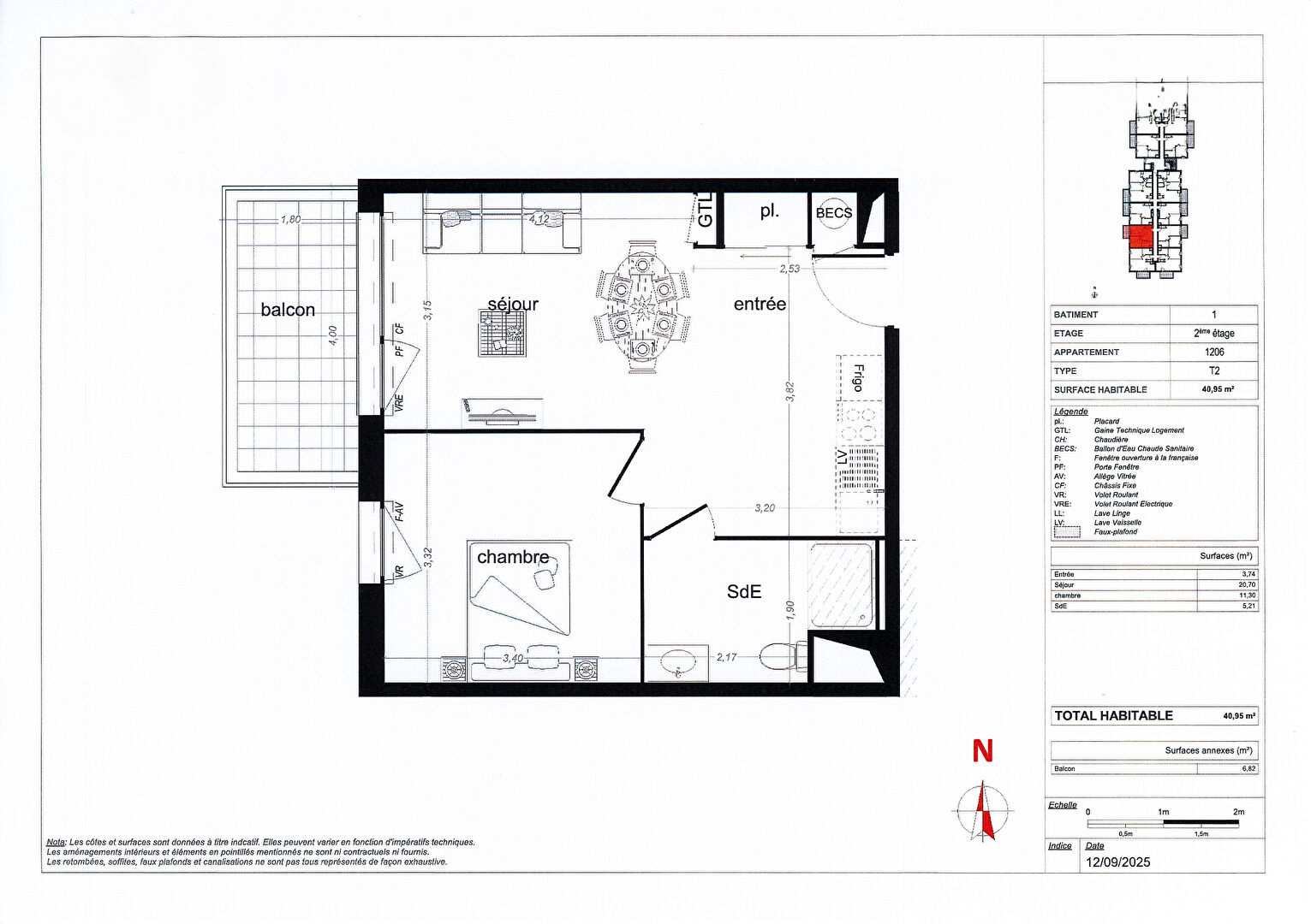
Nouvelle opportunité à saisir! Appartement T3 lumineux avec balcon exposé sud! Situé à seulement 200 mètres des commerces, au sein d'une résidence calme et entretenue de 2001, cet appartement de type 3 offre un cadre de vie confortable et pratique. D'une surface de 60 m², il se compose d'une belle pièce de vie lumineuse exposée sud et est, avec cuisine aménagée et équipée, donnant accès à un balcon couvert idéal pour profiter des beaux jours. La partie nuit comprend deux chambres, une salle de bains, et un WC séparé. Vous apprécierez également le garage fermé en sous-sol ainsi que la proximité immédiate des commodités! Les atouts: - Rez-de-chaussée - Aucun travaux à prévoir - Actuellement loué 750 charges comprises - Résidence de 2001 proche des commerces - Garage fermé e sous-sol
Honoraires d'agence réduits Prix HNI 159 900 (soit 154 500 net vendeur + 3.5% d'honoraires à la charge de l'acquéreur). AG IMMOBILIER COMMISSIONS REDUITES Pacé 2 agences à votre service sur Rennes et Pacé Les informations sur les risques auxquels ce bien est exposé sont disponibles sur le site Géorisques : www. georisques. gouv.fr
Honoraires inclus de 3.5% TTC à la charge de l'acquéreur. Prix hors honoraires 154 500 . Dans une copropriété de 69 lots. Aucune procédure n'est en cours. Classe énergie D, Classe climat B Montant estimé des dépenses annuelles d'énergie pour un usage standard : entre 1090.00 et 1530.00 sur les années 2021, 2022 et 2023 (abonnements compris). Les informations sur les risques auxquels ce bien est exposé sont disponibles sur le site Géorisques : georisques.gouv.fr.