Les charges de location sont prévisionnelles mensuelles avec régularisation annuelle.
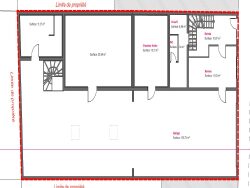
Quartier Saint-André - très proche hôpital et Palais de Justice Local de 191 m² à aménager/transformer consistant en tout le rez-de-chaussée d'un immeuble en pierre situé dans une rue calme. Nombreuses possibilités : - Habitation avec garage et terrasse - Projet de location en meublé(s) de tourisme (destination commerciale) - Rénovation en bureaux - Activité commerciale DP en cours d'instruction pour la création d'un patio de 30 m² avec remplacement des menuiseries. Bien non soumis au DPE en l'absence d'installation de chauffage. Petite copropriété de 3 lots en cours de constitution Ce bien vous est présenté par Julien Martin, agent commercial immatriculé au R.S.A.C. de Bordeaux sous le n°989 135 348. L'agence Actia Concept ne détient aucuns fonds dans le cadre de son activité de transaction sur immeubles.
Honoraires à la charge du vendeur. Dans une copropriété de 3 lots. Aucune procédure n'est en cours. DPE en cours. Les informations sur les risques auxquels ce bien est exposé sont disponibles sur le site Géorisques : georisques.gouv.fr.
200 m²
1 725 €
5
1930
Oui (3 lots)
Contact ACTIA CONCEPT
Contacter gratuitement à l'aide du formulaire ci-dessous.