Appartement CERET 2 pièces de 40m2 avec terrasse et parking
Céret 66400
0
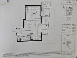
A Céret, situé sur la friche de l'ancienne gare dans une résidence de standing, venez découvrir ce bel appartement T2 (RE 2020 ) situé au 2nd étage de la résidence CONSTELLATION 154, d'une superficie habitable de 40 m2 bénéficiant d'une belle terrasse de 16 m2 orientée Sud-est.
Un salon-cuisine ouverte de 23 m2 , une chambre de plus de 13 m², une salle d'eau avec un wc.
Le bien est vendu avec une place de parking privée. Belles prestations pour votre futur appartement. Idéal résidence principale, secondaire ou investissement.
Pour plus d'information contactez-moi, produit rare.
Bien en copropriété composée de 26 appartements répartis sur 2 bâtiments de 3 étages avec ascenseur.
Prix: 175 000 euros frais d'agence inclus, charges vendeur.
Bien non soumis au DPE, pas de procédure en cours.
Pour visiter et vous accompagner dans votre projet, contactez Franck LEFEBVRE, au 0673738285 ou par courriel à f.lefebvre@proprietes-privees.com
Cette présente annonce a été rédigée sous la responsabilité éditoriale de Franck LEFEBVRE agissant sous le statut d'agent commercial immatriculé au RSAC PERPIGNAN 478849896 auprès de la SAS PROPRIETES PRIVEES, Réseau national immobilier, au capital de 40000 euros, 44 ALLÉE DES CINQ CONTINENTS - ZAC LE CHÊNE FERRÉ, 44120 VERTOU, RCS Nantes n° 487 624 777 00040, Carte professionnelle T et G n° CPI 4401 2016 000 010 388 CCI Nantes-Saint Nazaire. Garantie GALIAN - 89 rue de la Boétie, 75008 Paris
Mandat réf : 406 491- -Le professionnel sécurise et garantit votre projet immobilier-
Selon l'article L.561.5 du Code Monétaire et Financier, pour l'organisation de la visite, la présentation d'une pièce d'identité vous sera demandée.
Cette présente annonce a été rédigée sous la responsabilité éditoriale de Franck LEFEBVRE agissant sous le statut d'agent commercial immatriculé au RSAC PERPIGNAN 478849896 auprès de SAS PROPRIETES PRIVEES, au capital de 44 920 euros, ZAC LE CHÊNE FERRÉ - 44 ALLÉE DES CINQ CONTINENTS 44120 VERTOU; SIRET 487 624 777 00040, RCS Nantes. Carte Professionnelle Transactions sur immeubles et fonds de commerce (T) et Gestion immobilière (G) n°CPI 4401 2016 000 010 388 délivrée par la CCI Nantes - Saint Nazaire. Compte séquestre n°30932508467 BPA SAINT-SEBASTIEN-SUR-LOIRE (44230). Garantie GALIAN-SMABTP - 89 rue de la Boétie, 75008 Paris - n°28137 J pour 2 000 000 euros pour T et 120 000 euros pour G. Assurance responsabilité civile professionnelle par GALIAN-SMABTP n° de police 28137.J
Les informations sur les risques auxquels ce bien est exposé sont disponibles sur le site Géorisques "www.georisques.gouv.fr" -
Copropriété de 56 lots - dont 26 lots habitation. ().
Charges annuelles : 1200 euros.
Franck LEFEBVRE (EI) Agent Commercial - Numéro RSAC : PERPIGNAN 478849896 - .
50 m²
3 500 €
23 m²
2
1
1
1
1
1 sur 3
2027
Aménagée
Sud
Nord
Oui
Contact Franck LEFEBVRE
Contacter gratuitement à l'aide du formulaire ci-dessous.