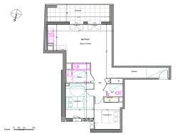
Idéalement situé au centre-ville d'Évian, à quelques pas seulement des rives du lac Léman, cet appartement de 70 m² s'inscrit au sein d'une résidence d'exception. Ce projet immobilier se distingue par son architecture soignée, ses prestations haut de gamme et ses espaces extérieurs végétalisés, offrant un cadre de vie privilégié dans un environnement calme et recherché. L'entrée, accessible par ascenseur, dévoile un aménagement fluide où la lumière naturelle prédomine. La pièce de vie de 32 m², incluant une cuisine ouverte sur le séjour, est bordée de larges baies vitrées qui prolongent l'espace vers une terrasse de 12 m², véritable pièce de vie supplémentaire aux beaux jours. La partie nuit se compose de deux chambres confortables et d'une salle de bains contemporaine, garantissant une fonctionnalité optimale au quotidien. Outre ses finitions de qualité, ce bien bénéficie d'une situation stratégique à proximité immédiate du prestigieux Golf d'Évian et de l'embarcadère, permettant de rejoindre Lausanne en 35 minutes par bateau. Ce lieu de vie allie parfaitement confort moderne, luminosité et accessibilité, répondant aux exigences d'une résidence principale comme d'un pied-à-terre d'exception. Projet VEFA - DPE pas encore disponible. Garage fermé en option. Dossier complet sur demande. Contact : Karine 06.14.98.51.52 ESPACES ATYPIQUES GENEVOIS - LEMAN Copropriété de 51 lots - dont 51 lots habitation.(Pas de procédure en cours). Karine ZEGRIR (EI) Agent Commercial - Numéro RSAC : 912 532 421 - THONON LES BAINS.