Bienvenue dans votre futur chez-vous ! Nous sommes ravis de vous présenter cet appartement parfaitement rénové et situé à 15 minutes à pieds de la Gare de Chartres. Lumineux, fonctionnel et offrant une belle vue dégagée, ce bien est idéal pour un premier achat.
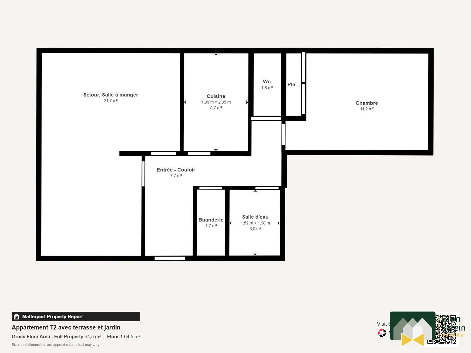
Découvrez un appartement composé comme suit : - Entrée sur une spacieuse pièce de vie avec cuisine ouverte et espace bureau - Débarras - Trois chambres (ouverture d'une chambre possible sur le séjour) - Une salle de bain moderne - Un wc indépendant - Un dressing
Côté confort : - 4ème et dernier étage - Nombreux rangements, dont cave et cellier - Exposition Sud pour une luminosité optimale - Déploiement de la fibre optique dans toutes les pièces du logement - Système de climatisation - Garage fermé
L'emplacement : Ce bien bénéficie d'un emplacement très pratique, qui vous permettra de tout faire à pieds. En effet, vous trouverez tous commerces et établissements scolaires à moins de 10 minutes à pieds tandis que le bus est à quelques pas et la gare de Chartres à 15 minutes à pieds.
N'hésitez pas à contacter votre agent au Noeud Pap' pour obtenir plus d'informations et visiter cet appartement !
Honoraires à la charge du vendeur. Dans une copropriété de 30 lots. Aucune procédure n'est en cours. Classe énergie D, Classe climat D Montant moyen estimé des dépenses annuelles d'énergie pour un usage standard, établi à partir des prix de l'énergie de l'année 2021 : entre 1055.00 et 1427.00 . Les informations sur les risques auxquels ce bien est exposé sont disponibles sur le site Géorisques : georisques.gouv.fr.