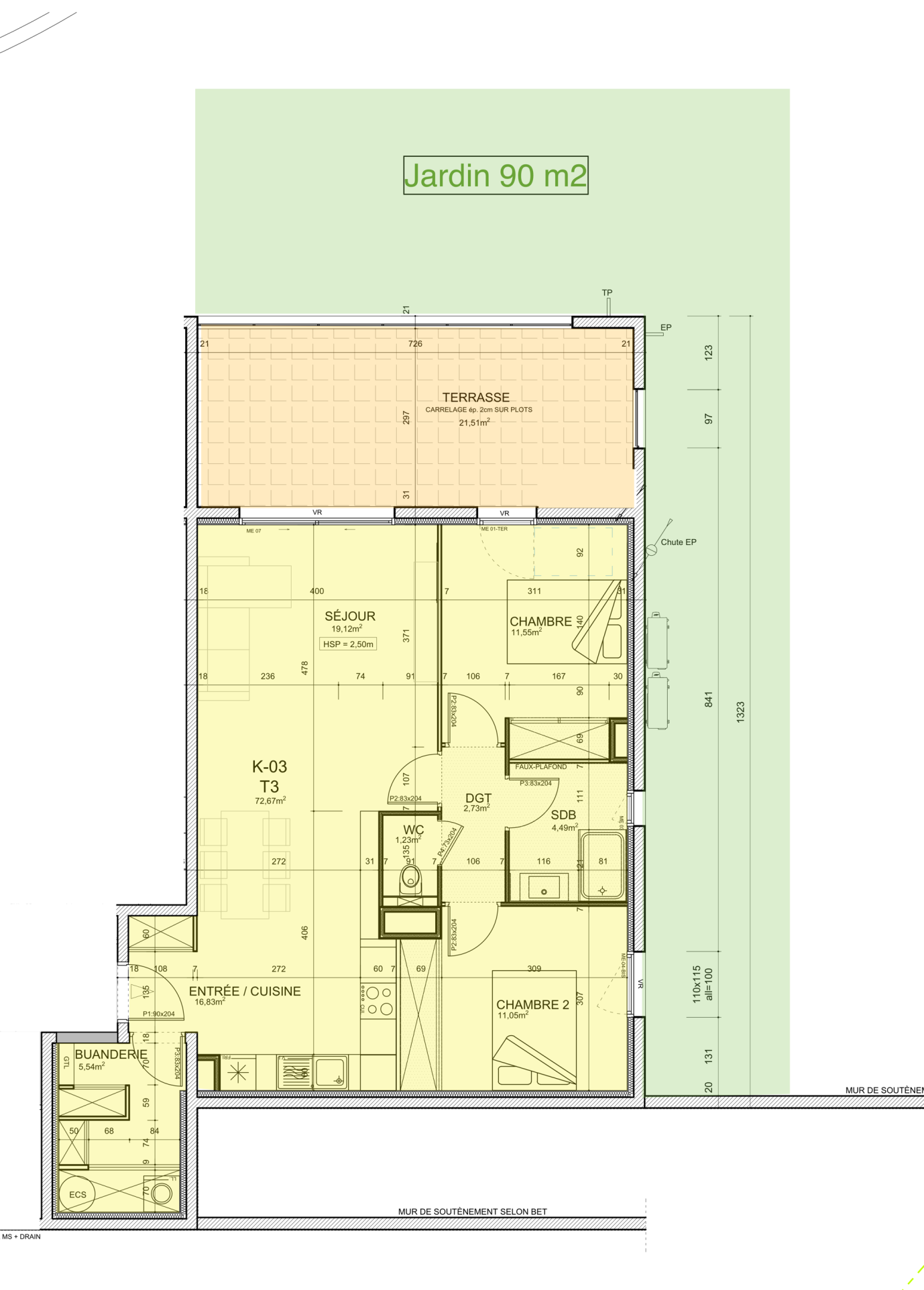
CORSE PATRIMOINE IMMOBILIER a sélectionné au sein d'une résidence calme et prisée, ce superbe appartement avec vue mer, bénéficiant d'une exposition Ouest idéale, offrant une luminosité remarquable et de magnifiques couchers de soleil. Conçu avec des prestations haut de gamme et une qualité de réalisation incomparable sur le section, ce bien se distingue par une conception intelligente et un confort de vie optimal. L'appartement est agencé comme suit : Une entrée ouvrant sur un salon-séjour spacieux avec espace cuisine, Une réserve/buanderie, L'ensemble donnant accès à une très grande terrasse couverte d'environ 20 m2, véritable pièce de vie supplémentaire, idéale pour profiter de la vue mer en toute saison. Côté nuit, vous trouverez de belles chambres, dont une avec accès à un balcon, une salle d'eau élégante, ainsi qu'un toilette séparé. Les plus du bien : Climatisation réversible gainable, Baies à galangage, Menuiseries en alu, Visiophone, Ascenseur, Matériaux haut de gamme, Résidence soignée et environnement paisible. Son emplacement exceptionnel permet un accès rapide à la plage, au port, aux commerces, restaurants et au pôle médical, le tout à pied. Un bien rare à Propriano, alliant emplacement privilégié, prestations de standing et qualité de vie. Les informations sur les risques auxquels ce bien est exposé sont disponibles sur le site Géorisques : www.georisques.gouv.fr
73.35 m²
5 126 €
30 m²
3
2
1
1
2
01/04/2026
2009
Ouest
1
Oui
1
Oui
1
Oui
Oui
Oui (45 lots)
Contact Corse Patrimoine Immobilier
Contacter gratuitement à l'aide du formulaire ci-dessous.