Appartement d'exception de 5 pièces avec grande terrasse !
Saint-Didier-au-Mont-d'Or 69370
0
Votre agence SIA IMMOBILIER vous propose:
Cet appartement remarquable situé dans une magnifique résidence récente et sécurisé.
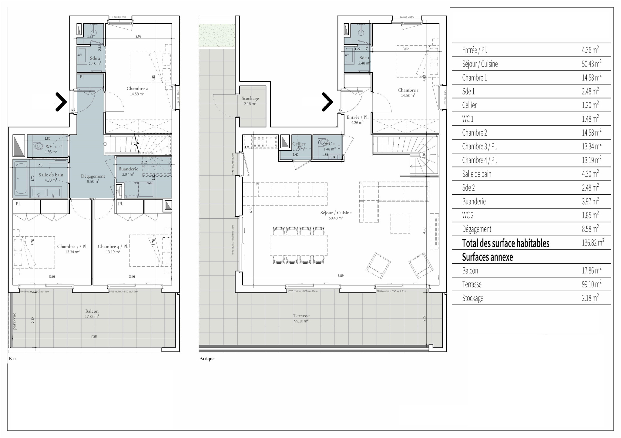
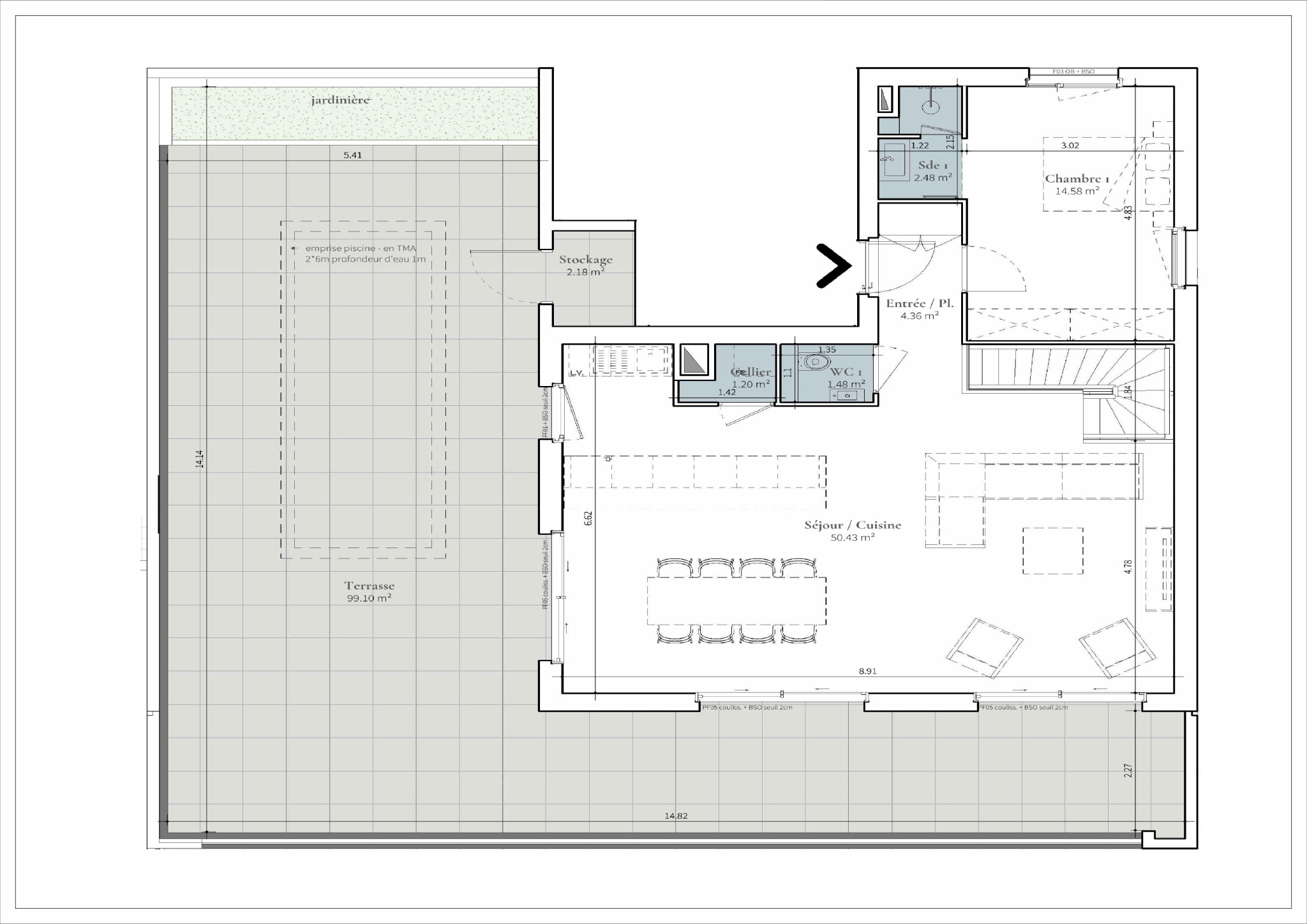
Ce fabuleux 5 pièces de 164.20 m2 comprenant une entrée, un fabuleux séjour cuisine donnant une terrasse de 180 m2 vue sans vis-à-vis, totalement dégagée sur l'horizon, et une large terrasse pour en profiter pleinement ! Les levers et les couchers de soleil sur les Monts d'Or. Un espace nuit comprenant 4 chambres, une salle de bain, Salle d'eau et un w.c Appartement répondant au normes et labels de qualité RT2012/RE2020 encore sous garantie décennale pendant 10 ans sur toute la structure de l'immeuble. Acune procédure encours. Frais de notaire REDUIT
Transport : TCL
Copropriété de 26 lots sur un batiments de 3 étages (Pas de procédure en cours). Batiment basse consomation, faibles charges ! Charges annuelles : 4000 euros. Montant estimé des dépenses annuelles d'énergie de ce logement pour un usage standard 781EUR et 1057EUR. 01/01/2021 Les informations sur les risques auxquels ce bien est exposé sont disponible sur le site Géorisque: www.géorisques.gouv.fr Pan et informations disponible : Joingnable 7J/7.Contacter Barbara : 06 89 16 73 49. Photos non contractuelle !
Les informations sur les risques auxquels ce bien est exposé sont disponibles sur le site Géorisques : www.georisques.gouv.fr
164.2 m²
7 911 €
56 m²
5
4
1
1
1
3 sur 3
333 € / mois
2024
Sud
Est
Oui
2
Oui
1
Oui
Oui (26 lots)
Consommations énergétiques
Logement économe
106
Logement énergivore (kWhEP/m2/an)
Émissions de gaz à effet de serre
Faible émission de GES
22
Forte émission de GES(kgeqCO2/m2/an)
Contact DIAS Barbara
Contacter gratuitement à l'aide du formulaire ci-dessous.