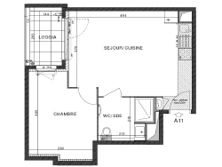
Dernière opportunité ! A visiter ! A Dardilly, je vous propose à la vente ce T3 de 39,40m² avec Balcon dans une résidence de standing aux dernières normes comprenant : Une entrée, un séjour avec cuisine ouverte donnant sur son balcon de 3,81m² , une chambre, une salle d'eau avec WC. Résidence contemporaine aux belles prestations intérieures Bâtiment basse consommation, faibles charges Visuel non contractuel Merci de contacter votre conseiller pour plus d'informations Copropriété de 25 lots - dont 25 lots habitation. Charges annuelles : 700 euros.